作図機能
緩和曲線付きの折れ線/多角形を作成
入力した折れ線/多角形の辺や頂点を緩和曲線付きで滑らかに丸めることができます。
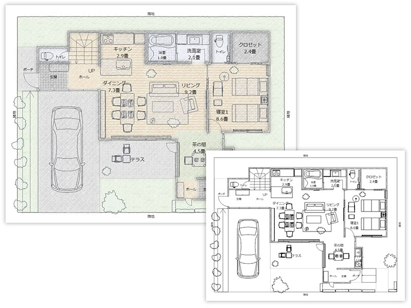
間取り図作成
3Dパース作成
間接照明を演出できる「光シール」
間接照明や影の効果をシール感覚で配置できる「光シール」機能を搭載。
照明器具の近くや床面に配置することで、間接照明やスポットライトなどの光表現を追加できます。
プレゼンテーション
