NEW【3Dマイホームデザイナーで建てた家】こだわり満載 通路に浮かぶ家



家づくりのきっかけ
義母との同居を機に二世帯住宅を建てることを決めました。
理想の家をシミュレーションするまでに苦労したこと
購入した土地は道路に接する間口が2.5mと狭く、20m奥に敷地が広がる旗竿地でした。
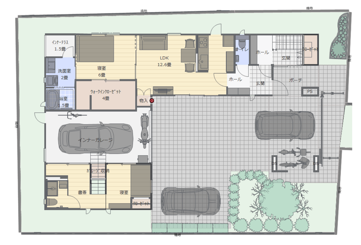
私は車が趣味で、憧れの寝室とガレージを一体にした間取りを実現したく、同じ1階に配置する義母の住戸も考慮しつつ、ガレージの位置をどう工夫するか悩みました。また、敷地は隣家の塀で覆われており、プライバシーも気にしながら間取りや窓の位置を検討しました。

3Dマイホームデザイナーで間取りをシミュレーション

設計、施工は大手ハウスメーカーに決めていましたが、せっかく注文住宅で家を建てるなら、まずは自分なりにプランを練ったうえで相談したいと考え、思い切って3DマイホームデザイナーPROを購入することにしました。
土地を購入した不動産会社の建築士の方がラフな間取りを提案してくれた際に、同ソフトでプレゼンして下さったのがきっかけです。使いこなせるか心配でしたが、機械系3D CADよりも遥かに使い勝手がよく、それでいて細部にわたってリアルな検討ができるので重宝しました。
特に、間取りの検討は、ハウスメーカーに気兼ねなく自分で納得できるまで何度もシミュレーションできたのと、契約したハウスメーカーでは3Dの提案はほとんど行われなかったので、自分で3Dを作成しながら打合せでデザイナーの方と建築士の方と完成イメージのすり合わせができたのは良かったです。
間取りを検討する際は、各部屋に配置する家具や採光を考慮しながら、窓の位置、大きさを決めることができました。また、太陽光発電を導入することも決めていたので発電量のシミュレーションも役に立ちました。
何よりも、家づくりを楽しめたのが良かったです。
完成した家のこだわりポイント


車を複数台所有しているため、通路を車の駐車スペースにしてしまうと人が通るのも難しくなるため、敷地奥をビルトインガレージとし、中庭に駐車スペースを確保することにしました。
ただ、それでは2階の居住スペースが狭くなり、家族が要望する間取りを満たせなかったため、道路から見える手前の位置にブリッジ状に建物を架け、中庭を抱くようにL字型の建物としました。
結果的に、道路から見たファサードは宙から浮いた印象的な建物となり、デザインを含めとても気に入っています。
ブリッジ状の建物には、妻が設計した離れ感覚の茶室を配置し、水屋やにじり口も備えました。
また、自分の寝室はベッドからダウンライトで照らされた愛車を眺められるよう間取りを工夫しました。


Staff comment
旗竿地という限られた条件を、ここまで魅力的に生かしたお住まいはなかなかありません。
なによりも、ご主人の「愛車と一緒に暮らしたい」という想いが間取りの随所に感じられました。
デザインも唯一無二で、見る人をワクワクさせてくれる住まいだと思います。
どうすれば希望を叶えることができるのか?を、楽しく検討いただけたようでとても嬉しいです!
素敵なエピソードをありがとうございました。




