NEW【3Dマイホームデザイナーで建てた家】壁紙にこだわったリフォーム


老後の暮らしを見据えた“終の住処(ついのすみか)”として、どんな家を選ぶか。
新築やマンションだけでなく、「中古の平屋をリフォームして自分らしく暮らす」選択をする人も増えています。
今回は、壁紙・床・天井までこだわり抜いたご夫婦のリフォーム実例をご紹介します。
理想の中古平屋をリフォームして“終の住処”に
今回、終の住処を考えている時に理想の中古の平屋を手に入れることができました.
平成元年の物件でリフォームをすれば十分住める状態の家でした。
しかし水回りは湿気や汲み取りのトイレ等ですべてリフォームが必要でした。
そこでせっかくリフォームするなら構造を組み替えるのは費用もかかるし、終の棲家でこれから何十年も住むわけではないので、それならば、壁紙や床材、天井にこだわってリフォームしようと思いました。

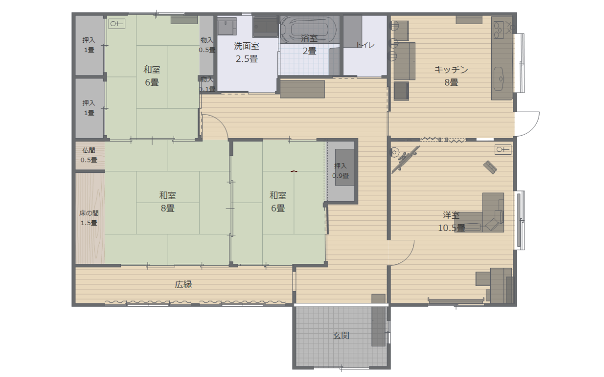
3Dマイホームデザイナーで間取りをシミュレーション
工務店の方とお話をしているうちに、メーカーの(主にサンゲツ)のカタログを貸してもらいましたが、サンプルが小さく、まったくイメージが湧きませんでした。
そこで、以前から気になっていた3Dマイホームデザイナーのソフトを購入して使ってみる事にしました。
実際に使ってみて、メーカーのホームページから様々にサンプルの画像をダウンロードして、3Dマイホームデザイナーへお気に入りに登録して、それを3Dパースに反映させる事で工務店、自分、嫁と共に情報を共有しながら工事が進められました。
その上で完成した家をみても、イメージした通りの壁紙や床、天井になっており非常に満足しています。本当にこのソフトが役立ちました。
工務店の方からもここまで拘って、かつ分かり易く提案してくれる施主は経験した事ないと言われました。



3Dパースギャラリー




Staff comment
終の住処づくりは、安心・安全だけでなく“好き”を詰め込む最後の住まい選び。
構造や間取りの大改造をしなくても、壁紙・床・照明といった内装を工夫することで、日々の暮らしが心地よく、気持ちのゆとりを感じられる空間に変わります。
そして、その第一歩として“3Dでイメージを共有する”ことは、納得感のあるリフォームを実現する上で欠かせません。
素敵なエピソードをありがとうございました!




