※本サンプルは下記「プラン概要」をもとにプラン作りから始め、3Dアーキデザイナーでデザインしました。3Dアーキデザイナーは、操作画面での高画質3Dイメージやパース画像はもちろん、360パノラマ画像、動画でもお客様と完成イメージを共有し、コミュニケーションをとることができます。
◆プラン概要◆
※プラン作成依頼時にメガソフトが提示したプランの概要です。
家族構成:
ご夫婦(30代)+ お子様2人(小学生と幼稚園生の男女)+ ネコ
要望:
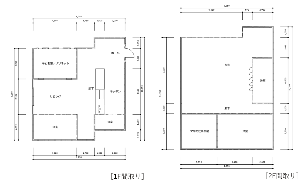
・キッチン&ダイニングは対面式で、家族と楽しく料理をしたい
・子どもの遊び場としても使えるスキップフロアがあるといい
・趣味の雑貨・アクセサリー作りの部屋が欲しい(奥様の趣味部屋)
・ネコが自由に歩き回れるようにしてあげたい

▲【子どもとネコと暮らす家】デザイナーの手描きラフ案
(プラン・m3da作成:空間計画工房・伏見美穂氏)
プランイメージ
◆家族が集い料理を楽しむLDK◆
●360パノラマ画像 ※マウスドラッグやスマホ・タブレットで360度見まわせます。
◆秘密基地のようなキッズルーム◆
●360パノラマ画像 ※マウスドラッグやスマホ・タブレットで360度見まわせます。
●ウォークスルー動画
◆メゾネットとネコのための回遊路◆
●360パノラマ画像 ※マウスドラッグやスマホ・タブレットで360度見まわせます。
●ウォークスルー動画









