平面図を素早く作成
ドラッグ&ドロップで平面図作成
部屋やドアや窓などの建具をドラッグ&ドロップだけで、どなたでも簡単に平面図を作成できます。
手順は「1.部屋配置」→「2.建具配置」の順でパレットから選んで配置していきます。
※1つのフロアを作成して、壁で仕切っていく方法もあります。
部屋や建具をドラッグ&ドロップして配置
外観・外構にも対応
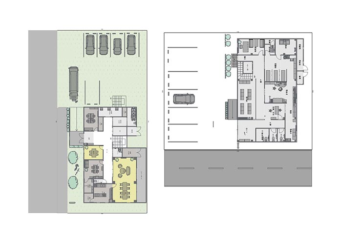
ワンフロアタイプの医療施設だけでなく、道路や樹木などの外構も作成できるため、外観・外構のある医療施設の図面も作成できます。
総合病院や戸建てタイプの医療施設にも対応
いろいろなパターンの図面
平面図をボタン1つでプランに合ったテイストへ素早く切り替えて出力できます。
シンプルな線画やおしゃれなタッチなど、一斉変更できます。
ボタン1つでパターン切り替え
手描き風図面もNew
手描き風の平面図もボタン1つで切り替えできるようになりました。
イラストタッチな平面図は、柔らかく、味わいのある雰囲気になるので、プレゼンボードやWebページで使用する際に便利です。





