導入事例・インタビューIntroduction & Interview

vol.011リフォーム助成金の申請書にも

vol.011 櫻井 野枝 氏

株式会社サクライデンキ

群馬県桐生市

市のリフォーム助成金の申請が一発承認。

群馬県桐生市で家電店を営んでいます。
ここ数年来、トイレやキッチンなどの水回り設備も電化された製品が主流になっていますので、シャワートイレなどの設備購入・設置と同時に住宅のリフォームも要望されるお客様が増加しています。

導入効果Conversion

  • スピード提案
  • 対比が明確に
  • 明確にイメージを共有できるツール

活用インタビュー

図面と専門用語では伝わらない。イメージを明確に共有化

弊社では10年ほど前からいち早くリフォーム業務に取り組んでおり、水道工事やインテリアコーディネーターの資格を持ったスタッフがリフォームの相談をお受けしています。
昨年からは3Dパースによる提案を取り入れ始めていますが、図面と専門用語だらけの説明ではピンとこないお客様と明確にイメージを共有できるツールとして重宝しています。

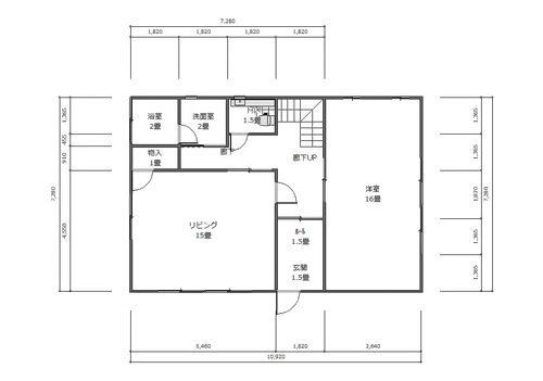
[ 図面 ]

間取り案

[ 3Dパース ]

無題

わかりやすさがポイント!一発で承認

これまではリフォーム後のイメージをはっきりと掴んでもらうために、リフォーム後の提案パースだけを作っていましたが、3D住宅リフォームデザイナーにはリフォーム前のイメージも作れるように旧式の設備データも収録されているとのこと。
ちょうど使ってみたい事案があったので早速試してみました。それが、市のリフォーム助成金の申請に添付する資料です。

補助金申請用

この助成金の申請にはどのような工事内容がわかる図面の添付が必須ですが、それにリフォーム前とリフォーム後の3Dパース図を使ってみたところ、とても分かりやすかったようで、一発で承認いただけました。

また、別の案件で住宅全体のリフォームを検討されているお客様への提案資料に、ビフォーとアフターを3Dパースで説明したプレゼンボードを作成してみました。
簡単な要望のヒアリングをしたあと、すぐに3Dパースを作成してお見せしたら、そのスピードにとても驚かれていました。
この時、ビフォーの画像はエージングで経年感を出して見せたんですが、アフターとの対比が明確になったので、新生活への期待が高まって、とてもワクワクしてもらえました。

[ ビフォー ]

ビフォーのプレゼンボード

[ アフター1 ]

アフターのプレゼンボード1

[ アフター2 ]

アフターのプレゼンボード2

最後に

ビフォーとアフターの3Dパースを使った対比はほかにもいろいろと使えそうですね。
今後は電気店らしく照明器具の提案にも使ってみたいと思います。

ご利用頂いている製品はこちら

3D住宅リフォームデザイナー10

  • マウス操作で簡単間取り・3Dパース作成
  • 進化したGUI「スマートアクセス」でさらに効率よく
  • ドーマー・天窓設置もワンタッチ!進化した屋根作成機能
  • 複雑な地形・道路の高低差も表現
  • 間取りサンプル378点収録