オリジナルの手すりや金物など商品の企画・販売・OEM提供を行う建材メーカーとして創業し、現在は都内のリフォーム・新築まで事業を拡大しています。
建材メーカーの強みを活かした材料の仕入れ、さらにモデルルームや営業マンをおかないことで大幅なコストダウンを実現し、満足度の高い商品やサービスを提供しています。
以前から3DマイホームデザイナーのPRO版を使っていたので、「3D住宅リフォームデザイナー」の発売を聞いた時、すぐに興味を持ちました。
最新のマイホームデザイナーPRO版の機能をベースに2画面リンクなど施工前と施工後を比較して提案できるリフォームらしい機能が搭載されていたので、これは買ってみようと思いました。
リフォームデザイナーはこれまで使っていたマイホームデザイナーから操作パネルが一新されていて、最初は少し戸惑いましたが、新しい操作パネルに慣れると非常に使いやすく、3D画面も以前のマイホームデザイナーより綺麗な画面でお客様に提案できるので、とても気に入っています。
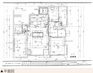
リフォームの場合は建物ありきなので、まずは現調をして測った寸法をCADソフト(JW-CAD)で入力して設計図面を書き上げ、それを元にリフォームデザイナーでトレースして、3Dの仕上がりイメージを作成しています。
トレースの際にもCAD図面を下絵として読み込めるので、助かりますね。お客様からも3Dだととてもわかりやすいと好評です。
うちは少人数でやっているので、3Dは主に間取りまで変えるようなフルリフォームをされるお客様へのご提案に使っています。
あと3Dで提案できるようになってからコンペでの勝率が上がったので、これからも3Dは使っていきたいですね。









![[3D住宅リフォームデザイナー]カタログダウンロード。PDFでダウンロードいただけます。](/3dreform/common/img/bnr_download.jpg)
![[インテリアから考える住宅リフォーム講座]キッチン編](/3dreform/common/img/bnr_kouza.jpg)
