確認申請図の自動作成

確認申請図を自動作成
確認申請図を自動作成
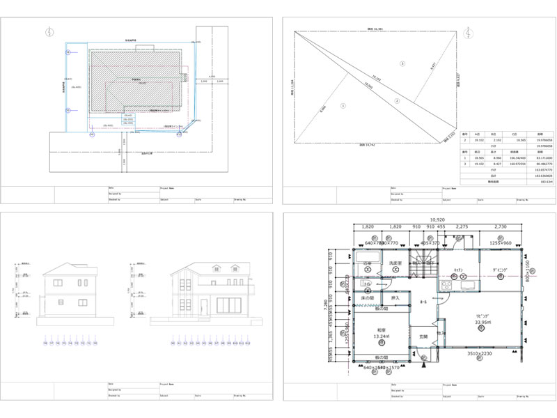
各種図面(7種)を自動作図

間取り画面から1クリックで確認申請に必要な各種図面(7種)を自動作図します。
「配置図」「敷地求積図」「床面積求積図」「平面図」「立面図」「断面図」「屋根伏図」

詳しくは、確認申請図支援キットページをご確認ください。

※確認申請図の機能は、クラウドライセンス版の方は無料でご利用いただけます。レガシーライセンス版をお使いの方は別途「確認申請図支援キット」をお買い求めください。


機能一覧