発電・消費電力量をシミュレーション
オリジナル太陽光パネルが作成可能
形状や要望に合わせた太陽光パネルを提案
シンボル付きのオリジナル太陽光パネルを作成できるウィザードを搭載。
屋根形状や施主の要望に合わせた太陽光パネルを追加できます。
設置したパネルやコンディショナーなど太陽光発電に必要な機器の数量拾い出し(面積・パーツ集計機能)も可能。見積作成時にも役立ちます。
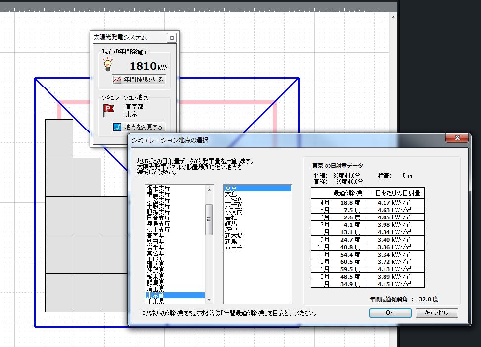
年間予想発電量をシミュレーション
全国801カ所(※)の日射量のデータを収録。
設置し、地域を選択するだけで、発電出力、枚数、パネル傾斜角度や方位を元に、発電力の年間推移グラフ表示してシミュレーションできます。
また、売電による費用回収時期も確認できる見積もり比較機能も加わり、太陽光パネル導入効果をよりリアルに提案できます。
※太陽光パネルシミュレーションでは、JIS C8907が推奨する独立行政法人 新エネルギー産業技術総合開発機構/財団法人 日本気象協会の全国801地点日射量データを用いて、発電量を算出しています。



