メガソフト トッププレスルームニュースリリースPCやスマホ・タブレットから情報検索できるフロアマップ開発キットを発売

ニュースリリース

MEGASOFT ニュースリリース



2012年11月15日
<報道関係者各位>

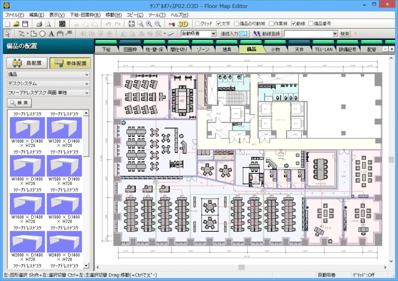
Flomage操作画面PCやスマホ・タブレットから情報検索できるフロアマップ開発キットを発売

標準価格:350,000円〜(税別)
対応OS:Windows 8/7/Vista/XP
「Flomage」製品ページ

 

メガソフト株式会社は、PCやスマートフォン、タブレットのWebブラウザを利用して、位置や名称、設備などの情報にアクセスできるフロアマップシステムの開発環境「Flomage(フロマージュ)」を11月15日より発売いたします。
また、30日間すべての機能が試用できる体験版も同日より配布を開始いたします。

店舗・学校・病院などの用途に応じた情報を設定してフロアマップを構築可能

「Flomage(フロマージュ: Floor Map Generator の略)」は、オフィスや商業施設、病院やビルなどのフロアマップ(平面図)を簡単に作成し、位置や名称、設備などの情報をマップ内に設定できるWebフロアマップ開発モジュールです。
作成したフロアマップはインターネット上のサーバーにアップロードすることで、スマートフォンやタブレット、パソコンのWebブラウザソフトから閲覧や情報検索が可能になります。
また、フロアマップの画像はベクターデータで生成されるため、拡大・縮小してもビットマップやJPEGイメージのように表示が乱れることはありません。

「Flomage」でフロアマップを作成することにより、ショッピングモールのフロアガイドを来店客がスマートフォンで閲覧する、オフィス内の備品・収納物の位置を社員が自席で検索する、工場内の機器管理をフロアマップ上でわかりやすく制御するなど、様々な分野への応用システムを簡単に構築することができます。

「Flomage」はフロアマップを作成する「Flomageマップエディタ」と、フロアマップをWeb上に表示させる「Flomageエンジン」で構成されています。
「Flomageエンジン」の運用は、メガソフトが運営する専用サーバーを利用する「ASP型」と、導入企業様のWebサーバーに「Flomageエンジン」をインストールする「インストール型」のどちらかで行います。

【Flomageの導入例】
●実験研究施設の運用・保守システム「HARDY LIVE」(三進金属工業株式会社)
大学や研究所などの実験研究施設において、機器の遠隔監視・計測、各種施設情報の検索、セキュリティなどをWebを利用して構築できるシステム「HARDY LIVE」の情報表示用フロアマップとしてFlomageが利用されています。
「HARDY LIVE」(三進金属工業株式会社)のページ
http://www.sanshinkinzoku.co.jp/html/seihin/gakkyu/pg227.html

【その他の応用例】
・オフィスの備品検索
・店舗の商品検索
・施設の防犯カメラ管理
・ビルメンテナンスの保守記録

Flomage製品ページ
https://www.megasoft.co.jp/flomage/

Flomage体験版ダウンロードページ
https://www.megasoft.co.jp/cgi-bin/try/flomage/cgi/form.pl

 

ダウンロード画像

※以下の画像ファイルをダウンロードできます。

Flomage操作画面 フロアマップ作成例
▲Flomage操作画面
FloorMapEditor.zip(534KB)
解凍後:FloorMapEditor.jpg(602KB)
▲フロアマップの一例
flomage-ex.zip(145KB)
解凍後:flomage-ex.jpg(169KB)

 

製品ラインナップ

製品名 標準価格(税別)
Flomage ASPライセンス
(フロアマップエディタ1ライセンス付き)
350,000円〜
Flomage 1ファイル管理費用 (1年間) 10,000円〜
Flomage インストールライセンス
(フロアマップエディタ1ライセンス付き)
オープン
フロアマップエディタ 追加1ライセンス 45,000円
Flomage 年間サポート(1年間) 200,000円〜

 

 

製品概要

製品名 Flomage(フロマージュ)
ジャンル Webフロアマップ開発モジュール
発売日 2012年11月15日(木)
企画・発売 メガソフト株式会社
流通方法 パソコンソフト流通より
動作環境 対応OS:Windows 8/7/Vista/XP
※詳細は、こちらをご確認ください。
製品紹介ページ https://www.megasoft.co.jp/flomage/
このページのURL https://www.megasoft.co.jp/publish/flomage/

 

お問い合わせ先

お客様からのお問い合わせ先(掲載用)
<メガソフト株式会社 インフォメーションセンター>
TEL: 06-6147-2780 FAX: 06-6131-5081
〒530-0015 大阪市北区中崎西2-4-12 梅田センタービル11階
受付時間:9:30〜11:45 13:00〜17:00(土曜、日曜、祝祭日をのぞく)
[メガソフト株式会社URL https://www.megasoft.co.jp/]
 
報道関係者からの取材、お問い合わせ先
<メガソフト株式会社 広報室/西脇・川田>
TEL: 06-6131-5028 FAX: 06-6131-5081
〒530-0015 大阪市北区中崎西2-4-12 梅田センタービル11階
受付時間:9:30〜11:45 13:00〜17:00(土曜、日曜、祝祭日をのぞく)
メールアドレスE-mail:press@megasoft.co.jp

 

このページのトップへ