アウトドアリビングが楽しめる一戸建ての間取り
バルコニーやバーベキュースペースでコミュニケーションを大切にする間取り
キャンプやガーデニングができる広い庭と、のんびりくつろげるバルコニーが欲しいですね。
家族でバーベキューをよくするのですが、雨の日でも濡れずにできるスペースがあると嬉しいです。
家族のコミュニケーションがよく取れるリビングにしたいです。
みんなで過ごす時間を大切にされている素敵なご家族ですね。
バルコニーでのんびりしたり、バーベキューを楽しめる、そんなお家にしました。
![]() |
4人家族 |
||||
|---|---|---|---|---|---|
![]() |
172.8m2(52.4坪) |
||||
![]() |
2,700~3,000万円 | ||||
建築士によるアウトドアリビングが楽しめる一戸建て間取り解説
「プライバシーを配慮したバルコニーでのベランピング」
「コミュニケーションがとりやすいオープンなLDK」
この2大要素を同時に叶えるために、今回は2階リビング案を採用しました。
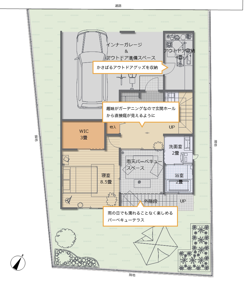
2階の施工面積が大きくなり、1階とのバランスが取りづらくなるため、 1階に寝室+お風呂・洗面室・トイレに加え、インナーガレージと アウトドア用品を収納できる外部収納を設けました。
「趣味はガーデニング」とのご要望を叶えるために、玄関ホールから直接お庭が見えるようにしました。
クリックして解説ポイントを確認
クリックして拡大図で確認
2階リビングにした事で、気になるのがお庭との分離感です。
そのデメリットを払拭する為に以下2つの対策を講じました。
・1階に雨の日でも濡れないバーベキューテラスを設置
・2階ベランダと庭をつなぐ外階段を設置
2階リビングは、構造的に負担が少ないメリットを活かして間仕切り壁が少なく かつ勾配天井とする事で、更に開放感ある空間としました。
子供部屋は2階リビングを通る事で、家族間のコミュニケーションが自然と取れる配置にしました。
ベランダの壁はプライバシーに配慮して通常の2倍程度の高さを確保し、ベランピングの雰囲気 を高めるために壁、床とも木目調の仕上げとしました。
クリックして解説ポイントを確認
クリックして拡大図で確認
アウトドアリビングが楽しめる一戸建ての内部をチェック!
インナーガレージ
1階 アウトドア収納
1階 玄関
1階 バーベキュースペース
1階 バーベキュースペース
間取り画像6
1階 寝室
2階 ダイニングキッチン
2階 ダイニングキッチン
2階 リビング
2階 バルコニー
2階 バルコニー
このページの間取りやパースは3Dデザイナーシリーズで作成しています。
360度でアウトドアリビングが楽しめる一戸建て間取りの内部をチェック
360度で見る事ができます。
マウスで画像をぐるぐると動かしてみてください。
360度画像は3Dデザイナーシリーズで作成しています。
アウトドアリビングが楽しめる一戸建ての内部をチェック
ウォークスルー動画は3Dデザイナーシリーズで作成しています。
アウトドアリビングが楽しめる一戸建ての間取りに関する質問と回答
外の庭から2階のベランダに階段で直接上がれるようになっていますが、防犯面を気にした場合、どのような対策を取れば良いでしょうか?
プライバシー対策の為の目隠しを強化すればするほど、泥棒からすると1度塀を乗り越えて敷地内に入ってしまえば近隣から見えずらくなるため、好都合と言われています。
警察からの指導でも、低めのブロック(1m以下)+視線が通りやすいデザインのフェンスの組み合わせが良いとされています。また、足音が出にくい犬走りを設置する場合も要注意です。
この事からもわかるように有効な防犯対策とは、泥棒からすると、塀の高さより「見られているかも」と言う事が1番の防犯対策になります。
まとめると、お庭のプライバシーを少し犠牲にしてでも、低めのブロック(1m以下)+視線が通りやすいデザインのフェンスの組み合わせをする。
他には、道路面の建物と隣地境界線部分にも鍵付きの扉を設けるなど、まずは敷地内に泥棒が入らないようにすることが大事。
外階段を上がりきったベランダ部分にも高さ2m以上の鍵付き門扉を設置する。
更に泥棒にもわかりやすい位置に防犯カメラ、センサー付きライトを設置(アピール)するのがおすすめです。
2階のテラス下は寝室となっていますが、騒音やテラスからの雨漏りなどが気になります。
その場合、どのような対策をすればよいでしょうか?
寝室上部がベランダによる防音対策としては、ベランダの床下地に防音マット を採用する事で振動を1/4程度まで軽減できます。
また雨漏りの件は、今回のベランダの大きさであれば通常のFRP防水でも問題ないと思いますが、 更に安心を得たい場合は、最近流行りの屋上庭園等で採用されている「金属防水」をお勧めします。
コスト的にはプラス50万から100万くらいだと思います。
雨の日でもバーベキューを楽しんだり、バルコニーでは星空を眺めたりと、楽しみの詰まったお家ですね。
素敵な間取りのお家をありがとうございました!
アウトドアリビングが楽しめる一戸建ての間取り
他の間取りを見る
- #ルーフバルコニー
- #カフェ+3LDK
- #スロープ
- #カフェ
- #オープンキッチン
- #リフォーム
- #キャットウォーク
- #オープンクロゼット
- #5LDK
- #シェアハウス
- #ネコと暮らす家
- #マンションリフォーム
- #ソーラーパネル
- #エレベーター
- #シアタールーム
- #地下
- #1LDK
- #1LDK+1LDK
- #1LDK+3LDK
- #2LDK
- #2LDK+1LD
- #3LDK
- #3LDK+1L
- #4LDK
- #5LDK
- #6LDK
- #アイランドキッチン
- #インナーガレージ
- #ウォークインクローゼット
- #ウッドデッキ
- #カーポート
- #ガーデニング
- #スキップフロア
- #テラス
- #ドッグスペース
- #バリアフリー
- #バルコニー
- #パントリー
- #ポーチ
- #ランドリースペース
- #ロフト
- #中庭
- #吹き抜け
- #和室
- #完全分離
- #完全分離型
- #平屋
- #書斎
- #玄関クローク
- #納戸
- #部分共有型
- #部分共用型











