一級建築士に聞いた ケース別間取りプラン
一級建築士に聞いた ケース別間取りプラン

アウトドアリビングが楽しめる一戸建ての間取り

狭い建物でも開放的に趣味が楽しめる間取り

狭い建物でも吹抜のある開放的なアウトドアリビングで、流行りの木の梁がむき出しに並んでいるようなおしゃれな家がいいですね。
テラスで趣味の家庭菜園、ナイトキャンプや天体観測がしたいです。
あと、最近電気代が高くなっているのでソーラーパネルもに気なっています。

狭い土地でも、工夫によって広々とした空間は作れます。
狭くても趣味を存分に楽しめる、そんなお家にしました。

家族構成

4人家族
【夫婦】+【子供2人】

土地面積

80.4m2(24.4坪)
用途地域:第1種中高層住居専用地域
詳しい用途地域の説明はこちら
高度地区:第一種低層住居専用地域、高度指定45m第2種高度地区
建蔽率:70% / 容積率 200% / 準防火地域 建築条件なし、私鉄沿線駅より徒歩3分 南向き
前面道路:南側6m、東6m角地

予算 予算設定なし(2022年9月)

建築士によるアウトドアリビングが楽しめる一戸建て間取り解説

南と東の二面道路で人通りも多いと想定されるため、1階はオフィスと寝室をまとめて、2階にLDKを配置し通行人の視線や眺望に配慮しました。
1、2階の形状が同じで外観形状がシンプルになりすぎるので、交差点部分をあえて削り、シンボルツリーを計画。オフィスとリビングから眺められるように配置しています。

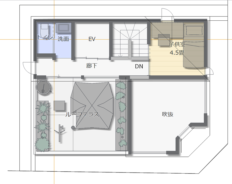
構造の安定性や設備配管のルートをシンプルにするため、各階の構成をなるべく統一。北側から1間~1間半の部分を廊下として北側に階段・EV・水回り、南側に居室などを配置しています。

晴れが続いたときは、洗面からホースを繋ぐので、位置も使いやすい場所にしました。

南と東の二面道路で人通りも多いと想定されるため、1階はオフィスと寝室をまとめて、2階にLDKを配置し通行人の視線や眺望に配慮しました。
1、2階の形状が同じで外観形状がシンプルになりすぎるので、交差点部分をあえて削り、シンボルツリーを計画。オフィスとリビングから眺められるように配置しています。

構造の安定性や設備配管のルートをシンプルにするため、各階の構成をなるべく統一。北側から1間~1間半の部分を廊下として北側に階段・EV・水回り、南側に居室などを配置しています。

ルーフテラスはテントを設置した時に、突風で吹き飛ばされる可能性を考えると、建物に囲まれているほうが安全と考えました。3階にもトイレと洗面を設置。この洗面は屋上で使用した洗い物なども想定しています。

野菜プランターは防腐剤を塗ったツーバイトゥエルブを使用。この野菜プランターにフックなどを取り付けて、テントの固定に使用してもよいと思います。
水やりは雨樋から雨水を樽型タンクにためておいて使用します。晴れが続いたときは、洗面からホースを繋ぐので、位置も使いやすい場所にしました。

アウトドアリビングが楽しめる一戸建ての内部をチェック


360度でアウトドアリビングが楽しめる一戸建て間取りの内部をチェック

360度画像ダウンロード

360度で見る事ができます。
マウスで画像をぐるぐると動かしてみてください。

360度画像は3Dデザイナーシリーズで作成しています。


アウトドアリビングが楽しめる一戸建ての内部をチェック

ウォークスルー動画は3Dデザイナーシリーズで作成しています。


アウトドアリビングが楽しめる一戸建ての間取りに関する質問と回答

ソーラーパネルを設置してくださいましたが、設置するにあたってのメリットとデメリットを教えてください。

昨今の状況を見ると、電気代やその他のエネルギー代はこれからも上がり続けると予想されます。 これからの太陽光は売電主体ではなく、なるべく自家消費を考え、今までの深夜電力の時間帯に電気の使用を集中させるスタイルから、逆に日中太陽が出ているときに使用するスタイルに変わって行くと思われます。具体的にはエコキュートを日中に焚いたり、衣服を日中のヒートポンプ乾燥機で乾かしたりなどです。
設置費用やメンテナンス、機器の取り替えなど考慮しても、コスト面では乗せるべきだと思います。

ソーラーパネルを設置するのに向いている地域や方角、屋根の形状などを教えてください。また、向いていない方向はありますか?

太陽光はやはり太平洋側や涼しい地域のほうが効率が良いようですが、そうでない地域でもかけた費用を回収する期間が延びるだけでほとんどの地域でメリットはあるようです。
方角はもちろん南側が良く、角度は30度程度がよいようですが、緩こう配でもそこまで大きく効率が落ちるわけではないようですので、建物のフォルムを悪くしてまで急こう配にする必要はないと思います。
形状は片流れが良いですが、設置枚数を考慮しながら計画すればよいと思います。
今回は東側の道路斜線制限をかわすために一部東流れの勾配になっています。

ソーラーパネルをプラン通りに設置するとしたら、初期費用はどれくらいかかるでしょうか?

コストについてはプランを太陽光発電業者さんに持ち込んで、費用・利息・自家消費による節電効果、売電などトータルでシミュレーションしてもらい、プランで決め打ちではなく色々検討するのが良いと思います。
また、住宅ローンと一緒に融資を受けるだけでなく、専用ローンや屋根貸しして無料で乗せるなどいろいろなパターンがあります

開放的に趣味を楽しめるだけでなく、エコの事も考えてくださってありがとうございました。
素敵な間取りのお家をありがとうございます!

マイホームデザイナーでは、使用している家電の消費電力量や、設置したソーラーパネルの発電量が簡単に診断できます。年間どのくらいの電力量を消費し、どのくらい補えるのか計算して、エコな家づくりを目指しましょう。

電力量チェック

▲家電の消費電力量チェック。季節やエアコン使用頻度など細かく設定が出来ます。

発電量チェック

▲ソーラーパネルの発電量チェック。地域の日射量のデータや方角などから割り出します。


自分たちでも自由に間取りを作成してみたい!
そんな時は3Dマイホームデザイナーがおすすめです。


詳しくはこちら