子育てしやすい間取りプラン(40坪前後)
広い庭でのびのびと子供たちが遊べる間取り
家事をしながらも、子供とコミュニケーションを取ったり、勉強している所を見守れる家がいいです。
子供たちが外で遊ぶ事が好きなので、大きめのおしゃれな庭も欲しいですね。
勉強している所を見守ってもらえるのはお子さん達も安心しますね。
庭で遊んだりコミュニケーションをしっかり取れる家にしました。
![]() |
4人家族 |
||||
|---|---|---|---|---|---|
![]() |
134.56 m2(40.7 坪) |
||||
![]() |
約3,000万円 | ||||
建築士による子育てしやすい間取り解説
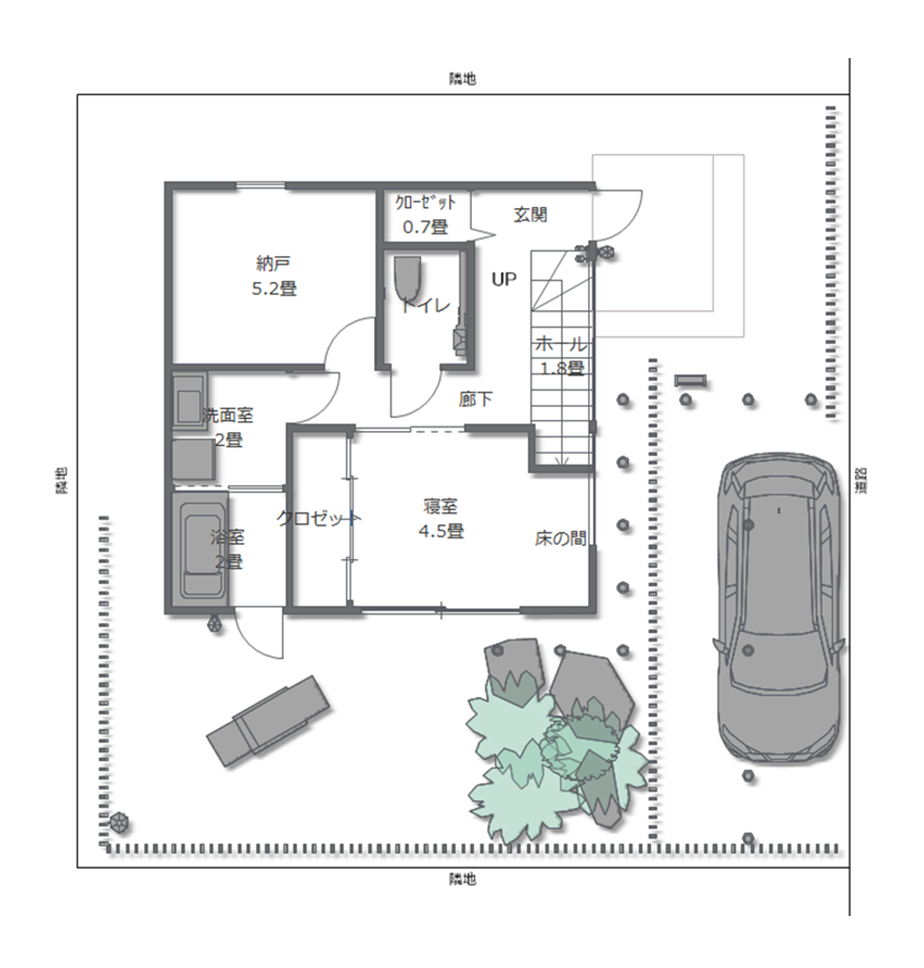
東面は道路が接道しているから、建物が建つことはありません。
また、1階では南面及び東面に目かくし塀を設置した上で、浴室を大胆に南面に配置し、子供たちがデッキで水浴びをしたり、外で遊んだあとにダイレクトにシャワーを浴びることができるように、浴室から出入りができるドアを設置しました。
1階南は南隣地とのスペースが期待できそうにないので、高めの目かくし塀をたて内庭をつくり、浴室から自由に出入りできる間取りになっています。
クリックして解説ポイントを確認
クリックして拡大図で確認
敷地が狭いのと、東道路に接していることから2階東面の開口を大きくしています。
朝日が降り注ぐ明るいリビングに直接子供室を接続。
しばらくはリビング⇔子供室は一体としてつかい、成長したら間仕切り壁を立てる予定です。
クリックして解説ポイントを確認
クリックして拡大図で確認
3Dで子育てしやすい間取りの内部をチェック
このページの間取りやパースは3Dデザイナーシリーズで作成しています。
360度で子育てしやすい間取りの内部をチェック
360度で見る事ができます。
マウスで画像をぐるぐると動かしてみてください。
360度画像は3Dデザイナーシリーズで作成しています。
ウォークスルーで子育てしやすい間取りの内部をチェック
ウォークスルー動画は3Dデザイナーシリーズで作成しています。
子育てしやすい間取りに関する質問と回答
2階の子供部屋を将来仕切る場合ですが、費用や工事の大きさなどを教えてください。
間仕切り壁と、出入口を二箇所となります。費用は約50万円程度です。
家の周りやデッキなどにふんだんに材木が使用されていますが、耐久性について教えてください。
また、材木の種類などで適しているものなどがあれば教えてください。
現在構造材はヒノキで考えております。5年から10年毎に防腐塗装が必要ですが、庇を910㎜だしています。
雨の掛かりは少ないので、耐用年数は50年以上だと考えています。
デッキは、イペ・セランガンバツ・マニルカラ等の耐久性と強度の高いもので考えています。
庭で遊んだ後、直接お風呂に行けるのがとても魅力的ですね。光も沢山入りそうなので明るいおしゃれな家になりそうです。
子育ての事をよく考えてくださり、ありがとうございました!
子育てしやすい間取りプラン(40坪前後)
他の間取りを見る
- #ルーフバルコニー
- #カフェ+3LDK
- #スロープ
- #カフェ
- #オープンキッチン
- #リフォーム
- #キャットウォーク
- #オープンクロゼット
- #5LDK
- #シェアハウス
- #ネコと暮らす家
- #マンションリフォーム
- #ソーラーパネル
- #エレベーター
- #シアタールーム
- #地下
- #1LDK
- #1LDK+1LDK
- #1LDK+3LDK
- #2LDK
- #2LDK+1LD
- #3LDK
- #3LDK+1L
- #4LDK
- #5LDK
- #6LDK
- #アイランドキッチン
- #インナーガレージ
- #ウォークインクローゼット
- #ウッドデッキ
- #カーポート
- #ガーデニング
- #スキップフロア
- #テラス
- #ドッグスペース
- #バリアフリー
- #バルコニー
- #パントリー
- #ポーチ
- #ランドリースペース
- #ロフト
- #中庭
- #吹き抜け
- #和室
- #完全分離
- #完全分離型
- #平屋
- #書斎
- #玄関クローク
- #納戸
- #部分共有型
- #部分共用型






ベランダ
デッキからお風呂入口
寝室
どもデスクからキッチン
リビングダイニング 




