子育てしやすい間取りプラン(40坪前後)
走るように家事と子育てができる間取り
小さい子供が2人いるのですが、子供の成長を見守りながら生活のできる間取りがいいです。
しかし、子供の物で家の中がごちゃごちゃしたり、家事がしにくくなるのは困ります。
キッチンは、オープンでおしゃれなアイランド型が良いですね。
子供部屋を作るとこもりがちになったり、目が行き届きにくいなどの問題も生まれますよね。
コミュニケーションも取れ、生活空間はすっきり、広々と。
そして、成長に合わせて変化する間取りにしました。
![]() |
4人家族 |
||||
|---|---|---|---|---|---|
![]() |
134.56 m2(40.7 坪) |
||||
![]() |
約3,000万円 | ||||
建築士による子育てしやすい間取り解説
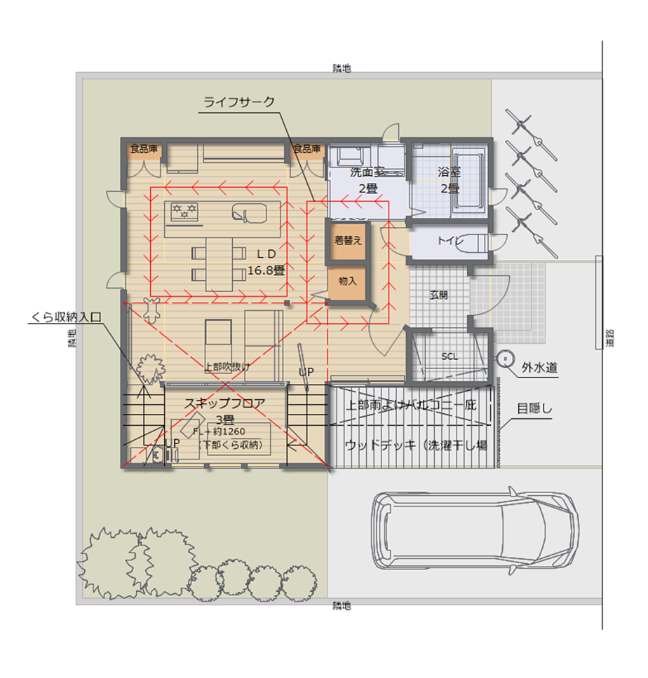
寝る以外の時間はすべて1階で過ごせるので、家族のコミュニケーションが取れます。
リビングスペースの中に、スキップフロアを確保する事で、子供たち専用の居場所を確保し自由に遊べるだけでなく、自立心の形成をはかります。
その他にも、
・南面のプライバシー確保。
・限られたスペースを立体的に最大限利用。
・吹抜けとあわせる事により視覚的に広がりを持たせる。
などの利点があります。
行き止まりがほぼなく、最短距離で素早くストレスなく家事ができるようにしました。
キッチンは、おしゃれなアイランド型にホームパーティーにも対応しやすい凹凸と死角の少ないLDK計画としました。
クリックして解説ポイントを確認
クリックして拡大図で確認
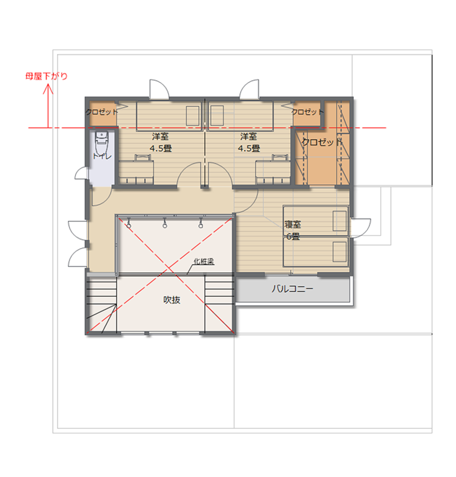
子供部屋はこもらせない、寝るだけ。として、北側に2部屋ならべて将来成長した後に仕切って二部屋にできる計画としました。
クリックして解説ポイントを確認
クリックして拡大図で確認
3Dで子育てしやすい間取りの内部をチェック
このページの間取りやパースは3Dデザイナーシリーズで作成しています。
360度で子育てしやすい間取りの内部をチェック
360度で見る事ができます。
マウスで画像をぐるぐると動かしてみてください。
360度画像は3Dデザイナーシリーズで作成しています。
ウォークスルーで子育てしやすい間取りの内部をチェック
ウォークスルー動画は3Dデザイナーシリーズで作成しています。
子育てしやすい間取りに関する質問と回答
スキップフロアにすると通常のフロアで家を建てるよりもコストは変わるのでしょうか?
元々存在する空間の中で行う工事の為(屋根裏や床下なども同じ)莫大な費用はかかりませんが、通常のフロア工事にプラスして床を貼ったり、スキップフロア下部を収納にしたりする手間賃と材料費が追加でかかります。
平均的には1坪20万円~25万円位ですので今回の間取りのスキップフロア(1.5坪)だと30万円~37.5万円位のプラスになると思います。
収納確保の為に坪数を増やしたり、3階建にする事と比べたら費用対効果的に考えてかなり安いと思います。
ただし、規格住宅を扱っているハウスメーカーさんでは特殊工事という扱いとなり、高額な追加費用がかかる場合もありますのでご注意ください。
スキップフロアだけではないのですが、リビング階段や吹き抜けの場合、寒さ対策が気になりますが、その場合、やはり床暖房を設置する方がいいでしょうか?
その他対策はありますでしょうか。
また、逆に夏の暑さ対策はいかがでしょうか。
私は普段からお客様のご要望以上に建物の基本性能にあわせたプランニングを心がけています。 今回の間取りを実際に建築する際の条件は以下の5点です。
① 建物の断熱性能をZEH(ゼロエネルギーハウス)仕様
② 熱交換型の第一種換気システムの採用
③ 空気の対流が少ない輻射熱タイプの暖房器具の採用(床暖房や蓄熱ヒーター)
④ 住み心地とは建物の性能(数値)だけでは不十分です。湿度コントロールに適した内装材
(壁に部分的でもよいので、しっくいや珪藻土、板張り等をおすすめします)
⑤ 窓は樹脂窓を採用し、東面と西面のガラスは遮熱タイプ。南面と北面のガラスは断熱タイプを採用。
暖房器具ですが、空気の対流が少ない床暖房をおすすめしますが、床暖房でないと寒いわけではありません。
1番大切なのは「建物の基本性能」です。
また夏の暑さ対策についても冬同様、まずは外気の影響を受けにくい断熱性能仕様にし、直射日光の影響が大きい東面と西面のガラスを遮熱タイプにした方がよいと思います。
スキップフロアの魅力がとても伝わって来ました!
子供にとっても、親にとっても、おしゃれなスキップフロアは利点が多いですね。
検討してみたいと思います。
素敵な間取りをありがとうございます!
子育てしやすい間取りプラン(40坪前後)
他の間取りを見る
- #ルーフバルコニー
- #カフェ+3LDK
- #スロープ
- #カフェ
- #オープンキッチン
- #リフォーム
- #キャットウォーク
- #オープンクロゼット
- #5LDK
- #シェアハウス
- #ネコと暮らす家
- #マンションリフォーム
- #ソーラーパネル
- #エレベーター
- #シアタールーム
- #地下
- #1LDK
- #1LDK+1LDK
- #1LDK+3LDK
- #2LDK
- #2LDK+1LD
- #3LDK
- #3LDK+1L
- #4LDK
- #5LDK
- #6LDK
- #アイランドキッチン
- #インナーガレージ
- #ウォークインクローゼット
- #ウッドデッキ
- #カーポート
- #ガーデニング
- #スキップフロア
- #テラス
- #ドッグスペース
- #バリアフリー
- #バルコニー
- #パントリー
- #ポーチ
- #ランドリースペース
- #ロフト
- #中庭
- #吹き抜け
- #和室
- #完全分離
- #完全分離型
- #平屋
- #書斎
- #玄関クローク
- #納戸
- #部分共有型
- #部分共用型






スキップフロアとリビングダイニング
スキップフロアとリビングダイニング
スキップフロア、リビングダイニングを見下ろす
スキップフロア下のくら収納
子供部屋 




