メガソフト トップ
>
サポート
>
間取り & 3D住宅デザインソフト マイホームデザイナーシリーズ
>
マイホームデザイナーLS
マイホームデザイナーLS
斜め天井を作成するには
1/1ページ
公開日:2007年7月12日
■詳細
斜め天井を作成するには、形状作成ツールで天井を作成して傾斜をつけ、天井材のテクスチャを貼って仕上げます。
■操作方法
間取り画面で間取りを作成します。
廻り縁をはずすために、斜め天井にする部屋をダブルクリックします。
[部屋のプロパティ]が表示されますので、[立体化設定]タブを選択し、[廻り縁]のチェックボックスをオフにします。
ナビの [ 立体化 ] を選択して立体化します。
ナビの [ 家具配置 ] - [ 床に置く ] を選択します。
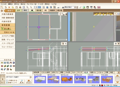
形状作成パレットを表示するために、[形状作成 ▼ ] ボタンをクリックします。
形状作成パレットが表示されますので、[ 床・天井 ] をクリックし、平面図で斜めにドラッグして天井となる形状を描きます。
ツールバーの [ 四面図表示 ] をクリックして画面表示を切り替えます。
ツールバーの [ 選択 ] をクリックし、立面図で天井のピンクのポイントをドラッグして天井の高さを調整します。
天井の角度を調整するために、最小回転角を変更します(⇒ 最小回転角の変更方法は
こちら
を参照)。
立面図で水色のハンドルをドラッグして角度を調整します(⇒ ユーザーズマニュアル62ページ参照)。
平面図で黄色のハンドルをドラッグしてサイズを、ピンクのポイントをドラッグして位置を調整します。
数値を入力して天井のサイズ(幅/奥行/高さ)や角度(RX/RY/RZ)を設定することもできます(⇒角度(RX/RY/RZ)の設定は
こちら
を参照)。
天井をダブルクリックして[直方体プロパティ]ウィンドウを表示し、各設定項目に数値を入力して[OK]ボタンをクリックします。
室内を眺めるような視点に変更して(⇒室内を眺めるような視点の作成方法は
こちら
を参照)、テクスチャパレットの[天井材]タブから任意のテクスチャを貼って仕上げます。
1/1ページ
間取り & 3D住宅デザインソフト 3Dマイホームデザイナーシリーズ
(C)MEGASOFT Inc.