サポート情報
不動産チラシデザイナー2

3Dマイホームデザイナーで間取りを開く際の注意事項
(部屋の塗り潰しに画像を使用している場合)

公開日:2013年2月7日

■詳細

間取り図作成画面で作成したファイルは、「3Dマイホームデザイナー」で開くことができます。
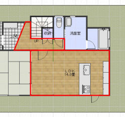
但し、部屋の塗り潰しにフローリングや石畳などの画像を使用している間取り図を、「『間取り図情報』をマイホームデザイナーで使う」で保存し、「3Dマイホームデザイナー」で開くと画像が解除され、塗り潰しなどに変更されます。

【不動産チラシデザイナー】の間取り図作成画面 【3Dマイホームデザイナー】の間取り画面

これは「3Dマイホームデザイナー」の間取り画面で[部屋のプロパティ]の塗り潰しパターンに画像が収録されていないためです。

一覧に戻る