メガソフト トップ > サポート > [立面図出力]で出力できる寸法線について

よくあるご質問

[立面図出力]で出力できる寸法線について

詳細

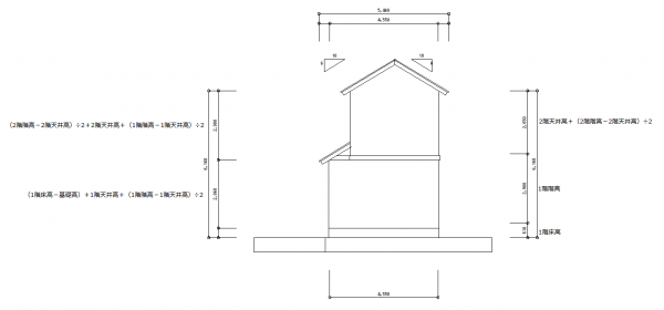
  立面図

 

 

 

3D画面のナビ[平面・立面図]から出力できる立面図の寸法線はあり/なしを選択できるだけで、任意の箇所の追加、削除はできません。また、拾い出しの範囲は上の図のとおりです。

 

調査依頼

各QAページをみても解決しない場合は調査依頼ボタンから、ご不明な点をお尋ねください。
※ご依頼いただく前にユーザー登録が必要です。

3Dアーキデザイナーシリーズ/3Dアーキデザイナー10 Professional、3Dアーキデザイナー11 Professional

3DマイホームデザイナーPROシリーズ/3DマイホームデザイナーPRO10EX、3DマイホームデザイナーPRO10、3DマイホームデザイナーPRO9EX、3DマイホームデザイナーPRO9、3DマイホームデザイナーPRO8

3Dマイホームデザイナーシリーズ/

3Dインテリアデザイナーシリーズ/3DインテリアデザイナーNeo10、3DインテリアデザイナーNeo3、3DインテリアデザイナーNeo2

3D医療施設デザイナーシリーズ/3D医療施設デザイナー11、3D医療施設デザイナー10

3Dオフィスデザイナーシリーズ/3Dアーキデザイナー11 Professional OfficePack、3Dオフィスデザイナー11 Professional EX、3DオフィスデザイナーPRO10

3D住宅リフォームデザイナーシリーズ/3D住宅リフォームデザイナー10、3D住宅リフォームデザイナー2、3D住宅リフォームデザイナー

物流倉庫3Dシリーズ/物流倉庫3D