ニュースリリース
2015年10月21日
ニュースリリース
<報道関係者各位>
■製品名:3DマイホームデザイナーPRO9EX
【ダウンロード版】
標準価格:118,800円(本体価格:110,000円)
【パッケージ版】
標準価格:129,600円(本体価格:120,000円)
製品紹介ページ
■製品名:3DマイホームデザイナーPRO9
【ダウンロード版】
標準価格:54,000円(本体価格:50,000円)
【パッケージ版】
標準価格:64,800円(本体価格:60,000円)
製品紹介ページ
発売日:2015年10月21日(水)
対応OS:Windows 10/8.1/8/7/Vista/XP
メガソフト株式会社(本社:大阪府大阪市、代表取締役:井町良明)は、間取り図内の見たい場所を順番に指定すると人工知能が経路を自動的に選定して仮想空間内を動画で見回れる「自動ウォークスルー」機能(※特許出願中)を搭載し、設計検討から施主への提案まで3D動画で行える業務用建築デザインソフト「3DマイホームデザイナーPRO9」を10月21日(水)より販売開始します。
※特願2015-163192:経路生成プログラム、経路生成方法及び経路生成装置

3Dマイホームデザイナーシリーズは1996年の発売以来、住宅を検討する幅広い層から支持されている三次元コンピュータグラフィックによる建築デザインソフトウェアです。
廉価な一般家庭版と高機能な建築業者用の二製品があり、総出荷本数が65万本を超えるヒット商品ですが、特に業務用製品は設計事務所、工務店、ハウスメーカー、リフォーム会社などあらゆる業態で導入されており、操作性・制作スピードについて高く評価されています。

【ユーザーの声】
●「検討段階での試行錯誤にスピーディーに対応できる数少ないソフトです。」
エムロード環境造形研究所
建築家 小見山健次様
●「リフォーム、リノベーションの営業に欠かせないツールです。」
町田ひろ子インテリアコーディネーターアカデミー
校長 町田ひろ子様
●「難しい操作に気を取られる事なく住空間を組み立てられる唯一無二のソフトです。」
寺岡建築設計事務所
レンダラー 寺岡千恵子様
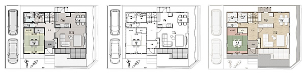
▲間取り作成画面(上)と3D編集画面(下)
この度発売する新製品「3DマイホームデザイナーPRO9 EX」は、パーツを並べ替えるように、あるいは鉛筆で描くようにして描いた間取り図が、そのまま立体的な3Dパース図になるという軽快な操作性はそのままに、これまで手間がかかっていたウォークスルー(3D空間を歩き回れる機能)の自動設定機能を搭載しました。
この「自動ウォークスルー」を利用すれば、見て回りたい場所を順番に指定するだけで、途中の経路が自動的に生成されてなめらかに視点を移動させることができます(特許出願中)。

▲【自動ウォークスルーの設定画面】(左)と【自動ウォークスルーのイメージ】(右)
本機能に加えて、ドーマー(屋根窓)、マンサード(中折れ屋根)、カバードポーチ(屋根付きバルコニー)、パインシャッター(飾り雨戸)などの自動作成機能も追加し、より多様な住宅デザインに対応しました。

メガソフトでは今後もさらにプレゼンテーション機能強化を図ることで、建築家と施主をつなぐ最高のツール を提供していきたいと考えています。
■マウス操作で簡単に間取りプランを作成
部屋や建具、家具や設備など、あらかじめ収録されている部品をマウスで配置するだけで簡単に間取りプランが作成できます。
間取りプランからワンタッチで立体的な3Dの住宅モデルが作れます。
■さまざまな風合いの間取り図が作成できる
標準的な間取り図からシャープな線画、やわらかなタッチなど、用途に合わせてさまざまな風合いの間取り図が作成できます。

■作業性がアップする間取り画面でのグループ化
間取り編集画面でオブジェクトをグループ化できるようになりました。作業性向上、誤操作防止に役立ちます。

■ドーマー・天窓などの屋根装飾機能(新機能)
ドーマーや天窓など、屋根を飾るための各種デザインをワンタッチで設定できます。
■建具のトリムやカバードポーチなど洋風住宅が簡単に(新機能)
洋風住宅のデザインにかかせないドアや窓のトリム(額縁)やカバードポーチ、オーナメントなどを簡単に設置できます。

■多様なテイストのバルコニーを表現(新機能)
スタイリッシュなパネルタイプや細桟タイプなど、多様なデザインのバルコニーが自動生成できます。
■自動経路設定可能なウォークスルー機能
始点と終点を設定するだけで間取りに自動的に経路を設定でき、階を跨いでの移動も可能な新ウォークスルー機能を搭載しました。
WAV形式・AVI形式でのムービー出力も可能です。

▲【自動ウォークスルーの設定画面】(左)と【自動ウォークスルーのイメージ】(右)
■3D表示の質感表現が向上
外壁材の凹凸の表現やタイル床の光沢感などがさらにリアルに表示できるようになりました。
やわらかな影の表現などとあわせて、リアルタイムで高品質な3Dイメージの確認ができます。

▲前バージョンの3D表示(左)と、質感表現が向上した新製品の3D表示(右)
■パースを彩るコンテンツを多数収録
有名メーカー46社の最新データを収録し、一般住宅からマンション、店舗、外構まで幅広いデザインに対応できます。
PRO9EXでは、クラシック・エレガントな家具、調度類をはじめ、高級木質材、重厚なフローリング、大理石、輸入タイプの壁紙、コーディネートされた食器セットなども収録し、ワンランク上の空間づくりが可能です。
■テクスチャ&色も即座に調整できるパーツプロパティパレット
家具などを選択するだけで即座に3Dモデル/テクスチャ/色の情報を取得できます。
テクスチャプロパティパレットでは、貼り付け位置の調整新たに色相/彩度/明度(相対値)の調整も可能になりました。
| 製品名 | 本体標準価格 (税込) | |
| 3DマイホームデザイナーPRO9EX | パッケージ版 | 129,600円 |
| ダウンロード版 | 118,800円 | |
| 3DマイホームデザイナーPRO9 | パッケージ版 | 64,800円 |
| ダウンロード版 | 54,000円 | |
※3DマイホームデザイナーPRO9と併せて、特定業界向けに下記の製品も同時発売いたします。
●リフォーム業向けに:3D住宅リフォームデザイナー2(税込価格:75,600円)
●インテリア業向けに:3DインテリアデザイナーNeo3(税込価格:84,240円)
※各製品について詳細は、3Dデザイナーシリーズページより、ご参照ください。
※以下の画像ファイルをダウンロードできます。
![]() |
![]() |
![]() |
| ▲製品パッケージ 3DMH9_pac.zip(346KB) 解凍後:3DMH9_pac.jpg(366KB) |
▲製品イメージ 3DMH9_intro.zip(318KB) 解凍後:3DMH9_intro.jpg(336KB) |
▲操作画面 |
![]() |
![]() |
![]() |
| ▲ウォークルーイメージ 3DMH9_walkthrough.zip(125KB) 解凍後:3DMH9_walkthrough.jpg(148KB) |
▲外観パース各種 3DMH9_image.zip(349KB) 解凍後:3DMH9_カバードポーチ.jpg(159KB) 3DMH9_ドーマー.jpg(87.6KB) 3DMH9_マンサード.jpg(76.6KB) 3DMH9_トリム.jpg(86.3KB) |
▲画質向上 3DMH9_perth.zip(894KB) 解凍後:3DMH9_perth_old.jpg(438KB) 3DMH9_perth_new.jpg(486KB) |
| 製品名 | 3DマイホームデザイナーPRO9EX/3DマイホームデザイナーPRO9 |
|---|---|
| ジャンル | 住宅・建築プレゼンソフト |
| 発売日 | 【ダウンロード版】 2015年10月21日(水) ※メガソフトショップにて先行発売 【パッケージ版】 2015年11月4日(水) |
| 標準価格 | 54,000円(本体価格:50,000 円)〜 |
| 開発 | メガソフト株式会社 |
| 流通方法 | パソコン流通ルート、メガソフトショップ、各種オンライン販売サイト、そのほか |
| 販売対象 | 建築設計事務所、工務店、ハウスメーカー、不動産業 |
| 動作環境 | 対応OS:Windows 10/8.1/8/7/Vista/XP ※3Dデザイナーシリーズページより、各製品情報ページ内の「動作環境」をご覧ください。 |
| 製品情報ページ | 3Dデザイナーシリーズページより、各製品情報ページへ移動してご覧ください。 |
| このページのURL | https://www.megasoft.co.jp/publish/3dmyhomepro9/ |
| お客様からのお問い合わせ先(掲載用) |
|---|
| <メガソフト株式会社 インフォメーションセンター> 〒530-0015 大阪市北区中崎西2-4-12 梅田センタービル11階 受付時間:9:30〜11:45 13:00〜17:00(土曜、日曜、祝祭日をのぞく) [メガソフト株式会社URL https://www.megasoft.co.jp/] |
| 報道関係者からの取材、お問い合わせ先 | (大阪・東京どちらでも対応可能) |
|---|---|
| <メガソフト株式会社 本社 広報室/西脇> 〒530-0015 大阪市北区中崎西2-4-12 梅田センタービル11階 受付時間:9:30〜11:45 13:00〜17:00(土曜、日曜、祝祭日をのぞく) |
大きな地図で見る |
| <メガソフト株式会社 東京事務所 広報室/川田> 〒102-0072 東京都千代田区飯田橋1-12-1 Daieishaビル3F 受付時間:9:30〜11:45 13:00〜17:00(土曜、日曜、祝祭日をのぞく) |
大きな地図で見る |
Copyright © MEGASOFT Inc.