MEGASOFT

間取り・注文住宅プラン集

全間取り図無料ダウンロード

#書斎のページ一覧です。

【間取り・注文住宅プラン】一階に広々としたLDKを設けた3LDKの間取り

【間取り・注文住宅プラン】カーポートとインナーパルコニーのある4LDKの間取り

【間取り・注文住宅プラン】東西に細長いコンパクトな敷地に建つ、3LDKの間取り

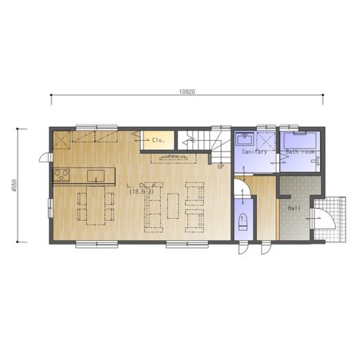
【間取り・注文住宅プラン】東西に細長い敷地に建つカーポートのある3LDKの間取り

【間取り・注文住宅プラン】大家族向けの5LDKの間取り

【間取り・注文住宅プラン】少し遊び心を持たせた余裕のある3LDKの間取り

【間取り・注文住宅プラン】大きな土間と吹き抜けのある和風の建物の間取り

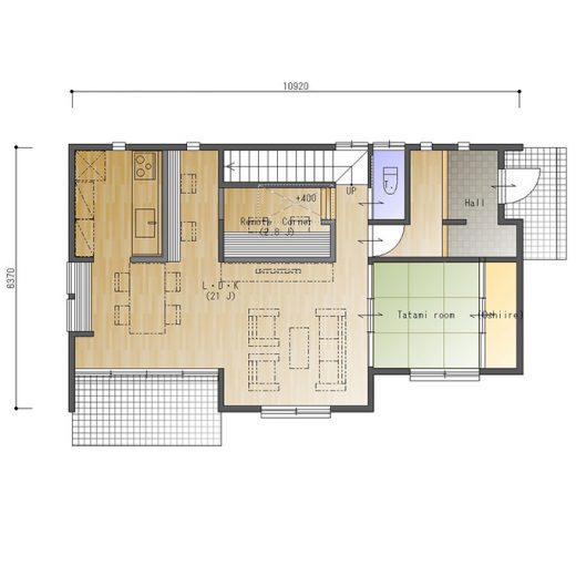
【間取り・注文住宅プラン】カーポートと和室と繋がった広いリビングのある3LDKの間取り

【間取り・注文住宅プラン】東西に長い敷地に建てる大家族向けの5LDKの間取り

7 / 14« First«...3456789101112...»Last »
  • 3Dアーキデザイナー
特集の間取りを見る

■間取り図の利用方法について
■m3dデータについて

間取り・プランの検索

部屋数
階数
玄関向き
延べ床面積

その他のキーワード

2階トイレ 2階リビング 2階水回り m3d アイランドキッチン アウトドアリビング ウォークインクロゼット ウッドデッキ カーポート コートクローク シューズクローク セカンドリビング バスコート パントリー ミセスコーナー ライトコート リビング階段 リモートコーナー リモートワーク ロフト ワークスペース 二世帯住宅 北側斜線 北側水回り 吹き抜け 和室 回遊動線 土間 対面キッチン 斜線制限 書斎 玄関収納 玄関土間 納戸 階段下収納
MEGASOFT

間取り・注文住宅プラン集

©1995-2023 MEGASOFT Inc.