間取り・注文住宅プラン集
【間取り・注文住宅プラン】東西に細長いコンパクトな敷地に建つ、3LDKの間取り

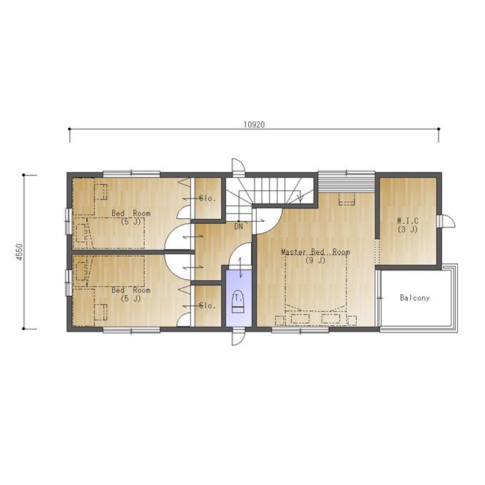
東(西)玄関で東西の間口6.0間(10920㎜)、南北の奥行が2.5間(4550㎜)の参考プランです。
東西に細長いコンパクトな敷地に建つ、3LDKの間取りです。
二階の主寝室を充実させた間取りです。子供部屋を5帖ずつの南北に分けたタイプにしました、5帖でもそれぞれが角部屋なので通風・採光は良好、家具の配置もしやすく狭さを感じません。
主寝室は8帖のスペースに書斎コーナーまで。大きめのバルコニーと3帖のウォークインクロゼットがあります。
二階ホールを極力小さくし、各部屋の広さが取れるように工夫されています。
これをベースにお好きな間取りに描き変えてください!(E153)

