MEGASOFT

間取り・注文住宅プラン集

全間取り図無料ダウンロード

#対面キッチンのページ一覧です。

【間取り・注文住宅のプラン】寝室にリモートコーナーを充実させた北道路3階建て4LDKのプラン①

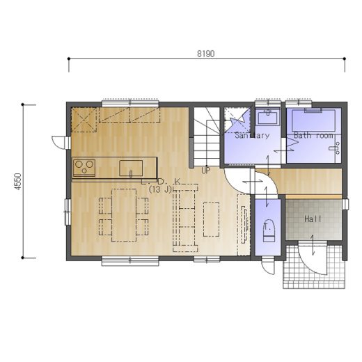
【間取り・注文住宅プラン】コンパクトな敷地に建つ、3LDKの間取り

【間取り・注文住宅プラン】コンパクトな敷地に建つ、3LDKの間取り

【間取り・注文住宅プラン】カーポートスペースと坪庭のある二階水回りの4LDKの間取り

【間取り・注文住宅プラン】広いLDKのある大家族向けの5LDKの間取り

【間取り・注文住宅プラン】コンパクトな敷地に建つ3LDKの間取り

【間取り・注文住宅プラン】南北に長い敷地に建つ、遊び心いっぱいの広いリビングのある5LDKの間取り

【間取り・注文住宅プラン】南北に長い敷地に建つ、遊び心いっぱいの広いリビングのある4LDKの間取り

【間取り・注文住宅プラン】コンパクトな敷地でも各部屋をしっかり確保した3LDKの間取り

11 / 14« First«...567891011121314»
  • 3Dアーキデザイナー
特集の間取りを見る

■間取り図の利用方法について
■m3dデータについて

間取り・プランの検索

部屋数
階数
玄関向き
延べ床面積

その他のキーワード

2階トイレ 2階リビング 2階水回り m3d アイランドキッチン アウトドアリビング ウォークインクロゼット ウッドデッキ カーポート コートクローク シューズクローク セカンドリビング バスコート パントリー ミセスコーナー ライトコート リビング階段 リモートコーナー リモートワーク ロフト ワークスペース 二世帯住宅 北側斜線 北側水回り 吹き抜け 和室 回遊動線 土間 対面キッチン 斜線制限 書斎 玄関収納 玄関土間 納戸 階段下収納
MEGASOFT

間取り・注文住宅プラン集

©1995-2023 MEGASOFT Inc.