間取り・注文住宅プラン集
【間取り・注文住宅プラン】玄関周りを充実させた独立した和室のある5LDKの間取り

東西の間口5.0間(9100㎜)、南北の奥行が4.5間(8190㎜)の南玄関の参考プランです。
玄関周りを充実させた独立した和室のある5LDKの間取りです。
建物中央に玄関があるタイプですが、こちらではシューズクロークをつけて玄関周りの収納量を充実させています。
和室と玄関スペースを少し奥にもってきて玄関前のスペースを広くしています。南側に二台駐車したい場合などを想定しています。
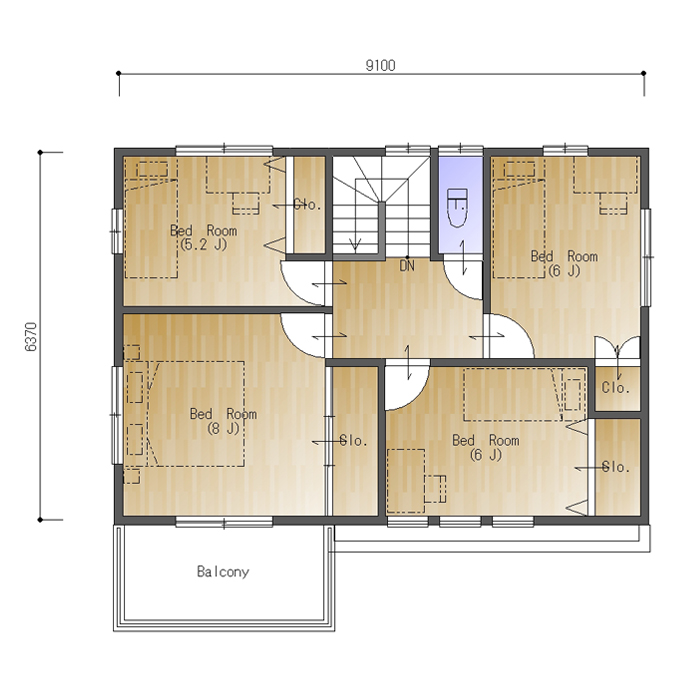
二階は四部屋で、お子さんが三人いる大家族向きの間取りです。主寝室前には大きなバルコニーを設けました。子供部屋はひとつだけ角部屋にならなかったのですが、南面をひろくとれるようにして窓の面積も大きくしています。角部屋にならない時にはこのような部屋のレイアウトにすると広く感じることができます。
これをベースにお好きな間取りに描き変えてください!(S122)

