間取り・注文住宅プラン集
【間取り・注文住宅プラン】独立した和室と広いバルコニーのある、北側斜線に配慮した4LDKの間取り

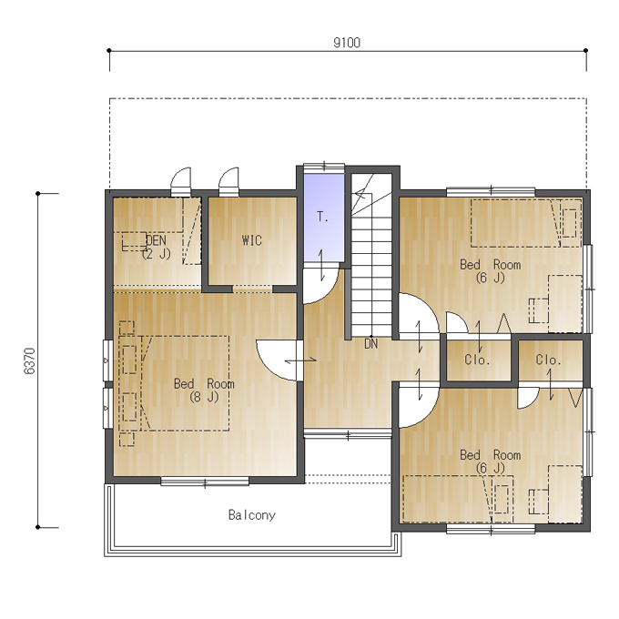
東西の間口5.0間(9100㎜)、南北の奥行が4.5間(8190㎜)の南玄関の参考プランです。
独立した和室と広いバルコニーのある、北側斜線に配慮した4LDKの間取りです。
一階の洗面所やお風呂にあたる部分が下屋になっています。これは第一種低層住居専用地域などで北側の斜線が厳しいとき、法規制をクリアするための一つの方法になります。
このように二階を下げるときもできるだけ上下階の部屋の壁線を揃えないと構造的に弱い家になってしまいます。
LDKは18帖の広さ。リビング・ダイニングセットをおいてもすこし広め大きさです。
玄関・廊下を挟んだ反対側には8帖の和室。十分な広さがあります。客間以上の使い方がありますね。
二階は三部屋。主寝室をメインにプランニングしてあります。ウォークインクロゼットのほか書斎、バルコニーは奥深く間口も3間とダイナミックな広さになっており階段ホールからもアクセスできます。
子供部屋はいずれも角部屋で通風・採光に配慮されています。間には共通で使えるクロゼットを用意しました。同性のお子さんなら大きくなるまで仲良く使えるクロゼットです。
これをベースにお好きな間取りに描き変えてください!(S121)

