間取り・注文住宅プラン集

【間取り・注文住宅プラン】独立した和室と広いバルコニーのある4LDKの間取り

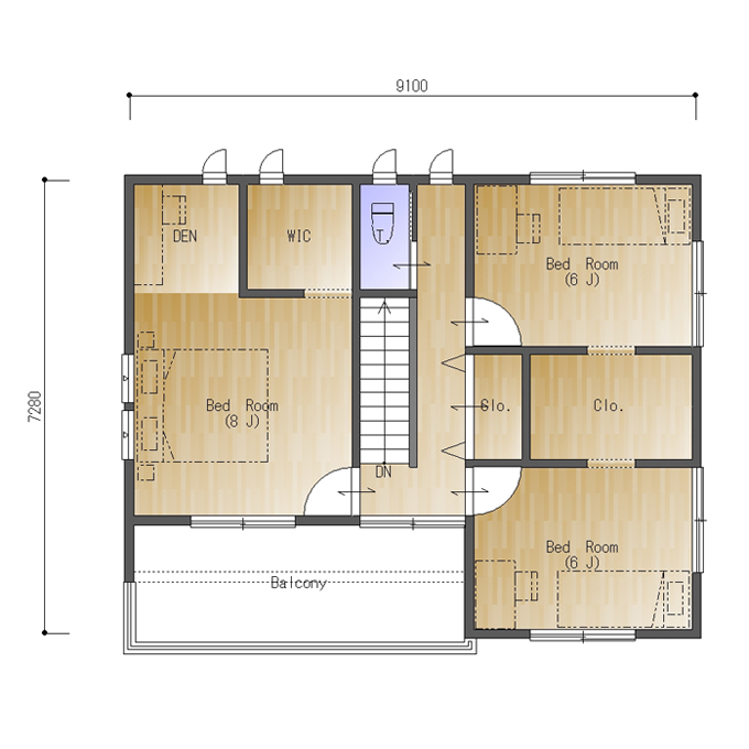
東西の間口5.0間(9100㎜)、南北の奥行が4.0間(7280㎜)の南玄関の参考プランです。

独立した和室と広いバルコニーのある4LDKの間取りです。

LDKは16帖の広さ。リビング・ダイニングセットをおいてちょうどよい広さです。
玄関・廊下をを挟んだ反対側には8帖の和室。十分な広さがあります。客間以上の使い方がありますね。

二階は三部屋。主寝室が主役になるようにプランニングしてあります。ウォークインクロゼットのほか書斎、バルコニーは奥深く間口も3間とダイナミックな広さになっており階段ホールからもアクセスできます。
子供部屋はいずれも角部屋で通風・採光に配慮されています。間には共通で使えるクロゼットを用意しました。同性のお子さんなら大きくなるまで仲良く使えるクロゼットです。

これをベースにお好きな間取りに描き変えてください!(S110)