間取り・注文住宅プラン集
【間取り・注文住宅プラン】カーポートのある4LDKの間取り

南玄関、東西の間口5.0間(9100㎜)、南北の奥行が3.5間(6370㎜)の参考プランです。
カーポートのある4LDKの間取りです。
玄関は奥に長く伸びるように上がり框を切って視覚的に広く見えるように工夫をしています。途中細長いFIX窓をつけて玄関ホールに明るさがはいるように。土間の先にはコートクロークがあります。
一階LDKは13帖なので壁付けのキッチンにしています。この方が空間は広く使えます。和室がつながっているので開け放てば17.5帖の空間に。和室ではなくフローリングを引いてリビングの一部にしてもいいですね。ここでは和室にしてますが参考にしてください。
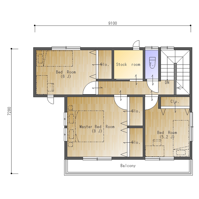
二階は3部屋。どの部屋も角部屋になるように工夫をしています。カーポート北側の一階水回りの上にうまく子供部屋が配置できています。
このプランでは子供部屋を離していますが南側の子供部屋と主寝室を入れ替えれば、子供部屋は壁一枚で隣り合わせになり、将来一部屋にするリフォームもしやすい間取りになります。
これをベースにお好きな間取りに描き変えてください!(S109)

