間取り・注文住宅プラン集
【間取り・注文住宅プラン】小さくても住みやすさ・使いやすさを兼ね備えたこのサイズでは王道をいくような3LDKの間取り

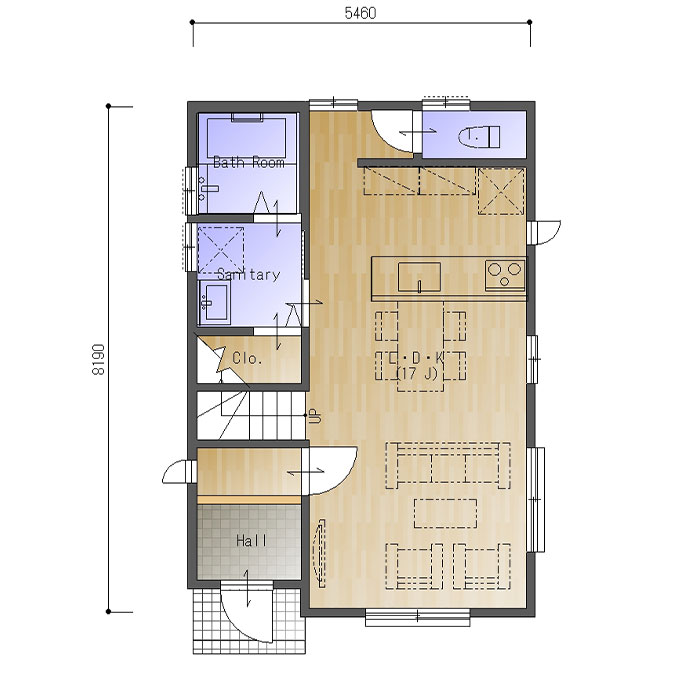
南玄関、東西の間口3.0間(5460㎜)、南北の奥行が4.5間(8190㎜)の参考プランです。
小さくても住みやすさ・使いやすさを兼ね備えたこのサイズでは王道をいくような3LDKの間取りです。
水回りを北側ではなくリビングダイニングの横に配置したためL・D・Kは17帖。十分な広さが取れています。
洗面には階段下を利用した収納が。リビング側からの収納にしても良いですが、リビング側の見た目を気にして敢えて洗面所側から開けるようにしてあります。
トイレはキッチンの北側に配置していますが、階段下収納と入れ替えることでリビングを広くすることも考えられますね。
二階は三部屋。北側の子供室はそれぞれクローゼットがついた角部屋。均等な部屋割りなのでどちらの部屋をとるかでケンカになりませんね。お子さんが小さいうちは間仕切りをなくして一部屋でも。
南側の主寝室は8帖、余裕の空間になっているのと3帖のクローゼット。収納量もバッチリです。
またできるだけ廊下が小さくなるようにしながら二階にもトイレを配置しました。
これをベースにお好きな間取りに描きかえてください!
(S013)
間取り図ダウンロード
イメージパース



