間取り・注文住宅プラン集
【間取り・注文住宅プラン】コンパクトな3LDKの間取り

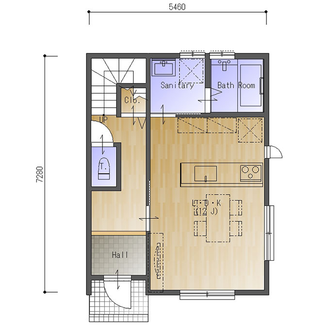
南玄関、東西の間口3.0間(5460㎜)、南北の奥行が4.0間(7280㎜)の参考プランです。
コンパクトな3LDKの間取りですね。
L・D・Kは12帖。対面キッチンになっていますが、このサイズなら壁付け型のキッチンの方がお部屋を広く使えるかも。水回りは北側に集中させて使いやすい動線に。浴室はしっかり一坪サイズのものが入っています。
このプランでは玄関から階段に直接上がれる間取りとしています。
少し余裕があるので廊下とリビングをつないで一体空間とする間仕切りに変えてもいいかもしれません。
二階は三部屋。それぞれの部屋に収納を設け、トイレも確保された構成になっています。
また廊下が最大限小さくなるようにしています。
三部屋がそれぞれ角部屋になるように配置しています。ですので狭さを感じない作りになっています。
これをベースにお好きな間取りに描きかえてください!(S009)


