間取り・注文住宅プラン集
【間取り・注文住宅プラン】大きな吹き抜けと二階回遊動線の楽しい4LDKの間取り

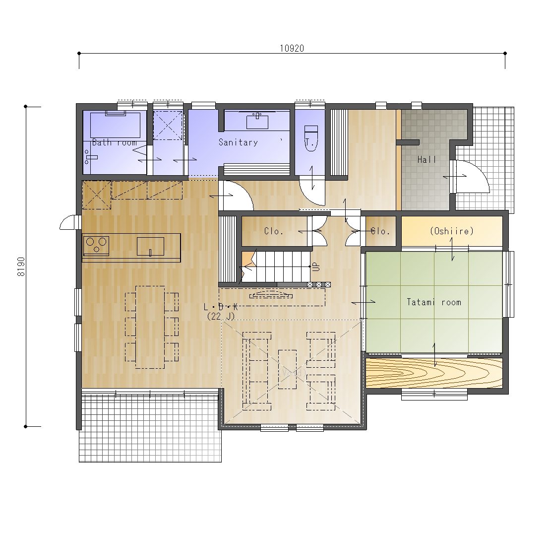
東(西)玄関で東西の間口6.0間(10920㎜)、南北の奥行4.5間(8190㎜)の参考プランです。
こちらも大きな吹き抜けと二階回遊動線の楽しい4LDKの間取りです。
一階は階段を中心に建物の中をぐるぐる回れる回遊動線になった、家事をしていて疲れない動線になっています。キッチン周りも充実、キッチンのすぐ脇には大きな洗面台をおける洗面所。ここはあえて扉を設けずそのまま洗面にいける動線にした方がよいかもしれません。
その代わり脱衣所を設けてそこには建具をおいて開け閉めできるよう・・・
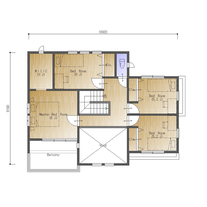
リビング上部には6帖大の大きな吹き抜けが。二階ホールから一階リビングを見下ろせる贅沢な空間です。二階も階段を中心に回遊動線になっており、主寝室へは北側からも南側からもはいれます。
キッチンからも近いので食事になって二階の子供を呼ぶにも吹き抜けを通して声がけできますね。家族の距離が縮まる吹き抜けです。
これをベースにお好きな間取りに描き変えてください!(E167)


