間取り・注文住宅プラン集
【間取り・注文住宅プラン】大きな吹き抜けと北側にもデッキのある4LDKの間取り

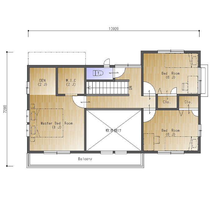
東(西)玄関で東西の間口6.0間(10920㎜)、南北の奥行4.0間(7280㎜)の参考プランです。
大きな吹き抜けと北側にもデッキのある4LDKの間取りです。
建物南側におおきなデッキを設けましたが、北側にも大きな開口部と外に出られるデッキを設けました。お風呂上りにちょっと涼んだりするのに気持ちの良い空間になります。特に北側がすぐに迫った隣地でなく、道路など開放的な場合に使える間取りです。
リビング上部には6帖大の大きな吹き抜けが。二階ホールから一階リビングを見下ろせる贅沢な空間です。キッチンからも近いので食事になって二階の子供を呼ぶにも吹き抜けを通して声がけできますね。家族の距離が縮まる吹き抜けです。
これをベースにお好きな間取りに描き変えてください!(E166)

