間取り・注文住宅プラン集
【間取り・注文住宅プラン】南側にカーポートを配置した大家族向け5LDKの間取り

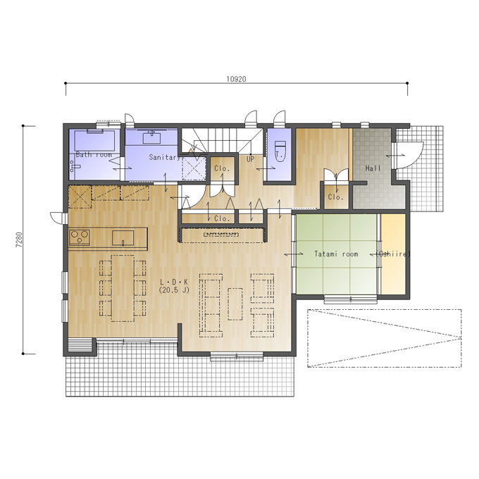
東(西)玄関で東西の間口6.0間(10920㎜)、南北の奥行4.0間(7280㎜)の参考プランです。
南側にカーポートを配置した大家族向け5LDKの間取りです。
日当たりの良い庭の部分にカーポートを配置しました。建物全体が北側に寄るので建物全体は日差しをたくさん受ける明るい配置になります。
子供部屋が3つある大家族向けなので玄関もひろくしています。シューズクロークとコートクローク付き。玄関周りがスッキリします。階段まわりの小さな空間にできるだけ収納を配置しました、これだけあれば日用品や普段使わないものまできれいに収納できますね。間口がひろくて奥行の浅い収納は全体が見渡せて使いやすい収納になります。
LDKは20.5帖、ダイニングも家族5人が無理なく座れるよう大きなテーブルがおける広さにしました。ダイニング前のポーチも二階のバルコニーがおおきな庇になっているので夏も直接日射が入りません。アウトドアリビングが楽しめますね。
二階の主寝室は3帖のウォークインクロゼットで満足な収納量、パウダーコーナーを設けました。奥様がゆっくり鏡に向かえます。正面のバルコニーは屋根のかかったインナーバルコニー。こちらも日差しがかからない空間です。開口部を大きくして外の空間と一体感をお楽しみください。
これをベースにお好きな間取りに描き変えてください!(E163)

