間取り・注文住宅プラン集
【間取り・注文住宅プラン】リビングにリモートコーナーがある3LDKの間取り

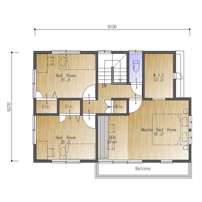
東西の間口5.0間(9100㎜)、南北の奥行が3.5間(6370㎜)の東玄関の参考プランです。
リビングにリモートコーナーがある3LDKの間取りです。
玄関にはシューズクロークが配されていて、ベビーカーやゴルフバッグなどの収納に便利ですね。コートクロークもあるので、来客の際コートを預かるのに重宝しそう。
一階は16帖のLDK。リビングの隣に配された3.8帖のリモートコーナーは、少し高さのあるスキップフロアが楽しいつくり。リモートワークやお子さんの勉強スペースとして最適ですね。
キッチンが対面式になっているので、家族の様子を見ながら家事ができるのも嬉しいポイント。階段下のクロゼットは掃除用具や生活用品の収納に便利です。
二階は三部屋の配置。二つある6帖の子供部屋はいずれも角部屋で、通風・採光に配慮されています。
8帖の主寝室には3帖のウォークインクロゼットのほか書斎も。バルコニーに面した明るく風通しの良い場所で、仕事や趣味に没頭できそうです。
これをベースにお好きな間取りに描き変えてください!(E105)

