間取り・注文住宅プラン集
【間取り・注文住宅プラン】広さと使いやすさを兼ね備えた4LDKの間取り

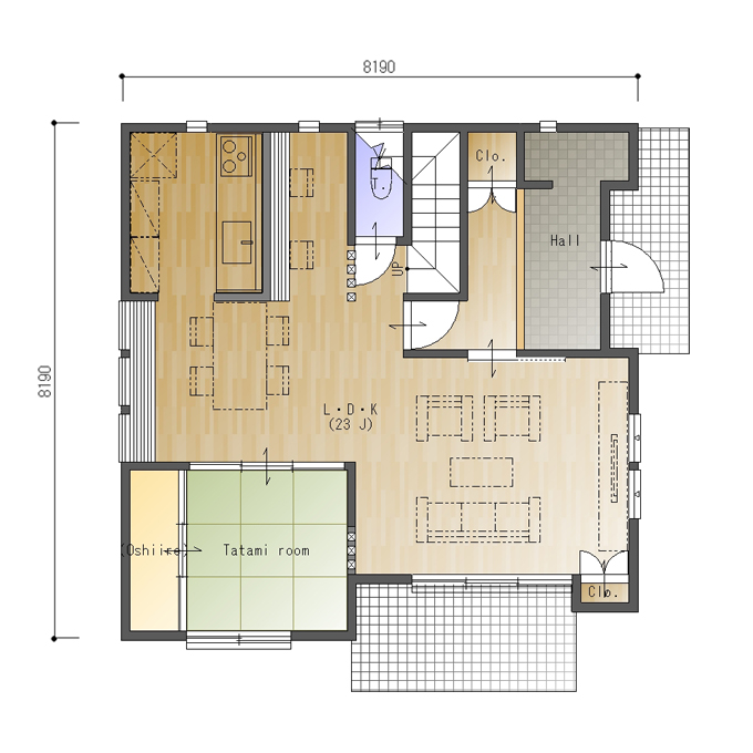
東玄関、東西の間口4.5間(8190㎜)、南北の奥行が4.5間(8190㎜)の参考プランです。
一階に和室、二階に水回りを設けました。広さと使いやすさを兼ね備えた4LDKの間取りです。
玄関にはシューズクロークとコートクロークをつけました。靴や上着をサッとしまえるので、お出かけ時や帰宅時にも重宝します。
一階のLDKは23帖。ダイニングとつながる4.5帖の和室を配しました。ふすまを開け放てば全部で27.5帖の広さに。キッチン前のカウンターテーブルは、来客時やリビング学習にも活用できます。
二階は水回りと三つの部屋を配しました。いずれも角部屋で通風・採光に優れています。
子供部屋はそれぞれ6帖のクロゼット付き。お子様が小さいうちは、大きな一部屋として使うこともできます。
主寝室は8.5帖とり、ベッドを置いても十分な広さです。奥行きのあるインナーバルコニーは、急な雨でも洗濯物が濡れる心配がないので安心ですね。
これをベースにお好きな間取りに描き変えてください!(E091)

