間取り・注文住宅プラン集
【間取り・注文住宅プラン】各所にカウンターを設けた、カーポートのある3LDKの間取り

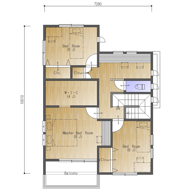
東玄関、東西の間口4.0間(7280㎜)、南北の奥行が5.5間(10010㎜)の参考プランです。
各所にカウンターを設けた、カーポートのある3LDKの間取りです。
玄関にはシューズクロークがあり、靴やカバン、アウトドアグッズを収納できます。ウォークスルータイプでそのまま室内に上がれる便利な動線です。
LDKは23.2帖と広々、対面式のソファを置いてもゆったりくつろげる広さとなっています。
ダイニングテーブルをキッチン横に置くことができるので配膳や片付けにも便利です。
ゆとりある空間を利用しキッチン前にはカウンターを設けました。お子様の勉強スペースにしても良いですね。
二階のホールにもカウンターを設け、親が仕事をするだけでなく、子どもも勉強したり本を読んだりする家族の共有スペースとして活用できます。
主寝室は9帖とダブルベッドを置いてもゆとりのある広さ。ちょっとしたカウンターを設置し、パウダーコーナーにも、静かなリモートコーナーにしても便利です。
これをベースにお好きな間取りに描き変えてください!(E064)

