共働き夫婦の間取り(狭小住宅の間取り)
友人が気兼ねなく遊びに来たくなる間取り
パーティーをよくやるのですが、友人も気を遣わずに過ごせる家がいいです。
土地の狭さや収納の少なさが気にならないようにしたいです。
あとはおしゃれな大きい窓が欲しいです。
狭いながらも心地よく過ごしていただけるように考えてみました。
そして、遊びに来られるご友人にも快適に過ごしてもらえるように工夫しました。
![]() |
2人家族 |
||||
|---|---|---|---|---|---|
![]() |
50m2(15 坪) |
||||
![]() |
2,000万円 | ||||
建築士による狭小住宅の間取り解説
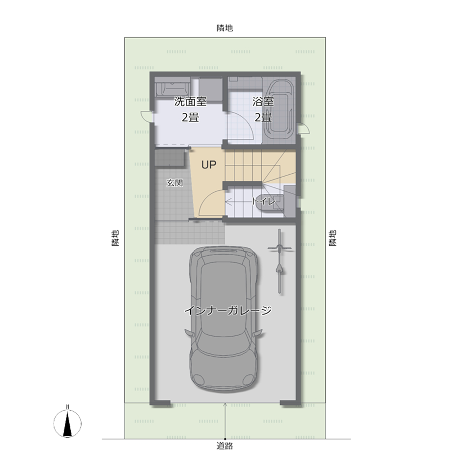
ビルトインガレージの奥に玄関を設けたため、車が停まっていてもストレスなく玄関までアプローチできるようにビルトインガレージの幅を通常より広めに取りました。
上手く停めれば自転車も停める事ができます。
パーティーなどで友人を招いた時、トイレ使用時のニオイや音の問題を配慮し、2階にはトイレを設置せず、1階トイレをゲスト用、3階トイレをプライベート用として設置しました。
クリックして解説ポイントを確認
クリックして拡大図で確認
2階は扉無しの完全ワンルーム(LDK)の計画。
ワンルームのデメリットのひとつであるニオイの問題を解決する為に、キッチンとLDの間に階段とバーカウンタースペースを配置してエリアをしっかり分ける計画としました。
できるだけ広く見えるようにリビングの南面を大開口にしました。
壁面収納を多用し収納力を補いました。
省エネと住環境に配慮し、階段の2階上がり切部に建具を設置しました。
クリックして解説ポイントを確認
クリックして拡大図で確認
用途地域からして敷地両サイドに3階建が建築されることを想定して、2・3階の道路面を大開口を設けました。
北側斜線ならびに道路斜線をクリアーする為に1階ならびに3階の階高を少し下げて計画しました。
クリックして解説ポイントを確認
クリックして拡大図で確認
3Dで狭小住宅の内部をチェック
このページの間取りやパースは3Dデザイナーシリーズで作成しています。
360度で狭小住宅の内部をチェック
360度で見る事ができます。
マウスで画像をぐるぐると動かしてみてください。
360度画像は3Dデザイナーシリーズで作成しています。
ウォークスルーで狭小住宅の間取りの内部をチェック
ウォークスルー動画は3Dデザイナーシリーズで作成しています。
狭小住宅の間取りに関する質問と回答
2階の屋根の上の部分、3階では何もない状態なのですが
もし何か活用できるなら、何かスペースを作成できるでしょうか?
3階のトイレを今の横配置から縦配置にする。またはトイレを介してで宜しければトイレの北側の屋根部分を収納にする事が可能です。
北側斜線があり、大部分の天井が斜めに下がる為、一部分的しか利用できませんがコストと相談しながら広げるのも選択肢のひとつだと思います。
ちなみにコスト的には25万~50万円位のアップだと思います。
ビルトインガレージの場合、車の排気ガスなどの問題はないでしょうか?
またビルトインガレージにするメリットとデメリットがあれば教えてください。
メリット
- 1階の建築面積がかせげる為、結果的に延床面積を増やしやすくなる。
- 雨の日でも車の乗り降りで濡れる事がなく、買い物後の荷物おろしがラク。
- 車の寿命がのびる。
- 車が汚れずらい。
デメリット
- 質問にもありましたが排気ガスの問題はあります。解決策としてはガレージ専用の換気扇を設置するか側面の壁に開口又は窓を設ける事をおすすめしております。
- 1階の壁量が減る為、構造材のサイズを大きくしたり、金物で補強したり等の対策が必要となる為その面ではコストアップになりますが、その分大工さんの造作工事が減る為相殺されるレベルだと思います。
リビングの南面を大開口を設けていますが、道路側からの目線が気になります。
カーテンをかける以外何かいい方法はありますか?
マジックミラー的なフィルムを貼る事でほとんど見えなくなります。しかしデメリットとしては日射も入りにくくなる為室内が多少暗くなります。
型ガラス(くもりガラス)であれば光が拡散されるだけで明るさも保ちプライバシーも確保できますが、その分室内からも外が見えなくなります。
道路からの目線だけであれば、床から1.5m位までを型ガラスする。又は床から1.5mから上だけ窓にする。という方法もあります。
プライバシーの事や、ニオイの事まで考えてくださりありがとうございました。
沢山おしゃれなパーティーができそうです。
大満足の間取りになりました!
共働き夫婦の間取り(狭小住宅の間取り)
他の間取りを見る
- #ルーフバルコニー
- #カフェ+3LDK
- #スロープ
- #カフェ
- #オープンキッチン
- #リフォーム
- #キャットウォーク
- #オープンクロゼット
- #5LDK
- #シェアハウス
- #ネコと暮らす家
- #マンションリフォーム
- #ソーラーパネル
- #エレベーター
- #シアタールーム
- #地下
- #1LDK
- #1LDK+1LDK
- #1LDK+3LDK
- #2LDK
- #2LDK+1LD
- #3LDK
- #3LDK+1L
- #4LDK
- #5LDK
- #6LDK
- #アイランドキッチン
- #インナーガレージ
- #ウォークインクローゼット
- #ウッドデッキ
- #カーポート
- #ガーデニング
- #スキップフロア
- #テラス
- #ドッグスペース
- #バリアフリー
- #バルコニー
- #パントリー
- #ポーチ
- #ランドリースペース
- #ロフト
- #中庭
- #吹き抜け
- #和室
- #完全分離
- #完全分離型
- #平屋
- #書斎
- #玄関クローク
- #納戸
- #部分共有型
- #部分共用型






玄関
キッチン
バーカウンター
バーカウンターから見たリビング
リビング
寝室 




