戸建リフォーム
二世帯間取りをシェアハウスに全面リフォーム
現在は部分共用型の二世帯間取りですが、息子家族の転勤を機に私たち老夫婦は近くのマンションに引っ越すことにしました。この建物を女性専用のシェアハウスに全面リフォームして貸し出そうと考えています。できれば部屋を4つ用意し、プライベートも尊重しながら快適に使える水回り空間も用意したいです。
シェアハウスは建築基準上「寄宿舎」として扱われます。
平成30年に建築基準法が改正され、現存の「戸建て住宅」を「寄宿舎」に用途変更する際、用途変更部分の床面積の合計が200㎡未満であれば「建築確認申請(用途変更)」の手続きは不要となりました。
増加する「空き家」の対策に緩和の方向になります。
敷地の用途地域は「第二種低層住居専用地域」で、建築の用途の制限もありますが「寄宿舎」はこの用途地域に建築(リフォーム)可能です。ただ、物件所在地の行政により、より厳しい基準がある地域もあるので確認が必要ですね。
その他「消防設備」として消化器・誘導等・自動火災報知機(電池式)などの設置が必要です。こちらは所轄消防署との打ち合わせが必要になります。
これらのことを踏まえて、4人の住人を受け入れることが可能な「女性専用シェアハウス」のリフォームプランを考えてみました。
![]() |
女性の入居者 4名 |
||||
|---|---|---|---|---|---|
![]() |
178.62m2 |
||||
![]() |
——— | ||||
建築士によるシェアハウスの間取り解説
外壁を白っぽい色からベージュ系にイメージチェンジしました。
主に1階は共有スペースのLDKと水回りを用意し快適に使える設備と空間でまとめました。
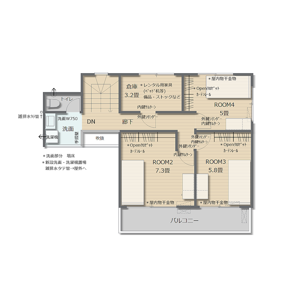
4つの個室の3つは2階に、1つは1階に用意しました。1階の個室のみトイレと洗面がついています。間取り図面と内部の図を御覧ください。
クリックして解説ポイントを確認
クリックして拡大図で確認
2階には3室を設け、全体で4室の居室を確保しました。さらに、2階にもトイレ・洗面台・洗濯室を設置することで、混雑の緩和と快適な生活動線を実現しています。
クリックして解説ポイントを確認
クリックして拡大図で確認
シェアハウスにリフォームした間取りを3Dでチェック
玄関側から
共用玄関ホール
共用のLDK
大容量の収納棚
1F洗面-シャワーブース
広めの部屋
ウォークインクロゼット
便利な部屋干しハンガーがついている
やさしいイメージの部屋
オープンクロゼット
屋根裏タイプの部屋
間取り画像12
このページの間取りやパースは3Dデザイナーシリーズで作成しています。
360度で1階のLDKをチェック
360度で見る事ができます。
マウスで画像をぐるぐると動かしてみてください。
360度画像は3Dデザイナーシリーズで作成しています。
二世帯住宅をシェアハウスに全面リフォーム
ウォークスルー動画は3Dデザイナーシリーズで作成しています。
シェアハウスのリフォームに関する質問と回答
共有スペースも大変充実していて生活しやすそうな素敵な間取りプランですね。
玄関の収納スペースには防災グッズも置けるようですし、キッチン、各部屋の収納スペースも十分にあるので快適に生活できそうです。
2 階のベランダですが、今は一つ続きになっているので間に何か設置して行き来ができないようにすることは可能でしょうか?
各部屋のエアコン室外機をバルコニー中央に背中合わせに配置してはいかがでしょうか。
きっちり分けるならマンションで使われる隔て板(へだていた)を設置することも可能です。
個室へのドアですが、これは鍵の部分のみを取り替えたらいけるのでしょうか?それとも鍵がついているドアに交換するということでしょうか。
既存扉と枠に加工ができるなら利用できます。
昨今建材などが高騰していると聞きますが、こちらのプランでリフォームするといだいたいどれくらいの予算が必要でしょうか。
リフォーム代、難しいですね。
コロナ・ウッドショック・人件費など様々な理由により工事代金はすごく上昇しています。
確実なことは申し上げれませんが、8年前、住宅フルリフォームで 40〜50万円/坪 という感じでしたので、現在3割増しとして 52〜65万円。この物件は132㎡ + バルコニー7.56㎡ = 約140㎡ =42.35坪2200万〜2750万 くらいでしょうか・・・シェアハウス仕様割増+外構工事もあるので、上方価格の2750万円 確約はできませんのであくまでも参考情報としてお考えください。
わかりました。予算も考えないといけませんね。
素敵な間取り変更プランをありがとうございました。
また、シェアハウスに用途を変更する際の建築法について大変勉強になりました。
ありがとうございました。
戸建リフォーム
他の間取りを見る
- #ルーフバルコニー
- #カフェ+3LDK
- #スロープ
- #カフェ
- #オープンキッチン
- #リフォーム
- #キャットウォーク
- #オープンクロゼット
- #5LDK
- #シェアハウス
- #ネコと暮らす家
- #マンションリフォーム
- #ソーラーパネル
- #エレベーター
- #シアタールーム
- #地下
- #1LDK
- #1LDK+1LDK
- #1LDK+3LDK
- #2LDK
- #2LDK+1LD
- #3LDK
- #3LDK+1L
- #4LDK
- #5LDK
- #6LDK
- #アイランドキッチン
- #インナーガレージ
- #ウォークインクローゼット
- #ウッドデッキ
- #カーポート
- #ガーデニング
- #スキップフロア
- #テラス
- #ドッグスペース
- #バリアフリー
- #バルコニー
- #パントリー
- #ポーチ
- #ランドリースペース
- #ロフト
- #中庭
- #吹き抜け
- #和室
- #完全分離
- #完全分離型
- #平屋
- #書斎
- #玄関クローク
- #納戸
- #部分共有型
- #部分共用型











