二世帯住宅の間取り(50坪前後)
二世帯が程よい距離感で心地よく暮らせる間取り
みんなで過ごせる広いリビングダイニングと、親夫婦が落ち着いて食事ができる茶の間でコミュニケーションができるような間取りがいいです。
テーブルなどを置いて食事ができるようなおしゃれなテラス付きの庭と、親夫婦が眺められるような落ち着いた庭の2つが欲しいです。
あとは、みんなが使える書斎が欲しいです。
二世帯と言っても、全員で楽しく過ごせる空間は大事ですよね。
お互いがゆっくりできるテラスと茶の間がある、そんな間取りを考えました。
![]() |
6人家族 |
||||
|---|---|---|---|---|---|
![]() |
178.62m2 |
||||
![]() |
約2,300万円 | ||||
建築士による二世帯住宅の間取り解説
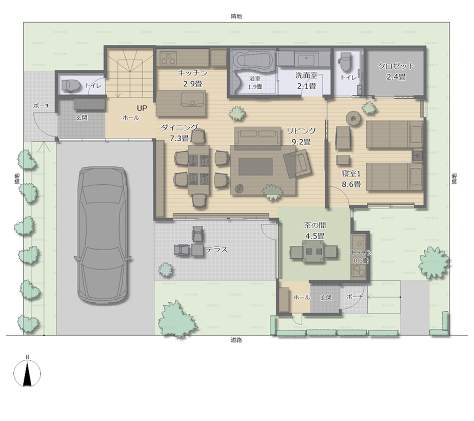
リビングと茶の間は隣同士、ドアを付けずにコミュニケーションも取れる程よい距離にしました。
1階の親夫婦専用トイレは、バリアフリーを意識して広めにしています。
庭は茶の間で東西に2つに分け、リビング側の庭は大きいテラスを中心に活動的に利用し、親夫婦寝室前の庭は四季の変化をながめられるおしゃれな庭にしました。
クリックして解説ポイントを確認
クリックして拡大図で確認
2階の書斎は、普段は夫婦で使いますが、子供の受験期は子供用の勉強部屋にも利用できます。
ホールは全面ガラス張りで、1階の玄関と2階のホールは吹き抜けになっているので、広々とした空間になっています。
クリックして解説ポイントを確認
クリックして拡大図で確認
3Dで二世帯住宅の内部をチェック!
このページの間取りやパースは3Dデザイナーシリーズで作成しています。
360度で二世帯住宅の内部をチェック
360度で見る事ができます。
マウスで画像をぐるぐると動かしてみてください。
360度画像は3Dデザイナーシリーズで作成しています。
ウォークスルーで二世帯住宅の内部をチェック
ウォークスルー動画は3Dデザイナーシリーズで作成しています。
二世帯住宅の間取りに関する質問と回答
リビングと茶の間がオープンなのですが、何か仕切りを付けるとしたらどのような物がよいでしょうか?
初めは襖や障子を設置する事を考えていましたが、パースを作成する上で、リビングルームとの連続感を表現するため建具を省略しました。
そこがこの家のキモなので、世代間のつかず離れずの関係を表しています。
将来的に、現在の親世帯が亡くなり、子世帯だけになった時に現在の間取りをどのように変更して活用すればよいでしょうか?
方針は2つあります。
①そのまま世代交代する。
子世代の夫婦が1階の寝室を利用し、孫世代の夫婦が2階の寝室を利用します。ひ孫が子供部屋を利用します。
②1階の親世代の部分を独立させ、賃貸にするか、孫世代が結婚し独立を希望する場合の新居とする。
幸い玄関が別になっているので、リビングルームと茶の間の間を壁でしきり、クローゼットの一部に浴室を設けると、独立した庭付き平屋の一戸建て住宅ができます。
二世帯が生活するにあたって、いい距離感で過ごせそうな家ですね。
素敵な二世帯住宅の間取りをありがとうございました!
二世帯住宅の間取り(50坪前後)
-
庭や吹き抜けで開放的な二世帯住宅の間取り
-
二世帯がそれぞれの生活を大切に暮らせる間取り
-
プライバシーを守りながら、お互いの気配を感じる間取り
-
食事はやっぱり一緒に。
広いリビングダイニングで家族団らんできる間取り
他の間取りを見る
- #ルーフバルコニー
- #カフェ+3LDK
- #スロープ
- #カフェ
- #オープンキッチン
- #リフォーム
- #キャットウォーク
- #オープンクロゼット
- #5LDK
- #シェアハウス
- #ネコと暮らす家
- #マンションリフォーム
- #ソーラーパネル
- #エレベーター
- #シアタールーム
- #地下
- #1LDK
- #1LDK+1LDK
- #1LDK+3LDK
- #2LDK
- #2LDK+1LD
- #3LDK
- #3LDK+1L
- #4LDK
- #5LDK
- #6LDK
- #アイランドキッチン
- #インナーガレージ
- #ウォークインクローゼット
- #ウッドデッキ
- #カーポート
- #ガーデニング
- #スキップフロア
- #テラス
- #ドッグスペース
- #バリアフリー
- #バルコニー
- #パントリー
- #ポーチ
- #ランドリースペース
- #ロフト
- #中庭
- #吹き抜け
- #和室
- #完全分離
- #完全分離型
- #平屋
- #書斎
- #玄関クローク
- #納戸
- #部分共有型
- #部分共用型






ダイニングからリビング
ダイニングからキッチン
リビングからダイニングと茶の間
茶の間のミニキッチン
茶の間からリビング
親世帯寝室
吹き抜け
子供部屋
2階の書斎
子世帯 寝室 




