自然あふれる郊外の一戸建ての間取り
家族でサーフィンを思う存分楽しめる間取り
家族で週末は近くの海でサーフィンを楽しみたいので、海から帰ってきたら外で海水を流したり、ボードを洗いたいです。そして、家の中か外にボードを置くおしゃれな場所が欲しいです。
敷地と道路との高低差をうまく利用してください。
普通車1台と軽自動車、子供の自転車を止めるスペースも欲しいですね。
海が近いので、趣味のサーフィンを思う存分楽しみたいですよね。
土地の高低差を活かしつつ、開放的な間取りにしました。
![]() |
4人家族 |
||||
|---|---|---|---|---|---|
![]() |
191m2(58 坪) |
||||
![]() |
3,000万円 | ||||
建築士による郊外の一戸建ての間取り解説
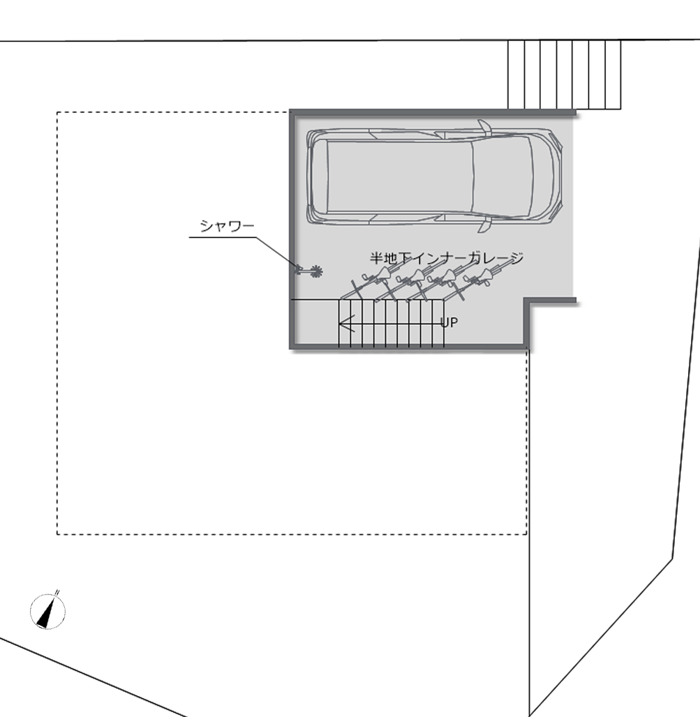
敷地高低差を利用し、半地下ビルトインガレージを作成。緩和処置により容積率、建蔽率に含まれません。自動車1台、自転車も置ける広さです。
シャワーを設置し、サーフボードを洗う事ができます。
ガレージ内に1階へ上がるための出入口を設置しています。
クリックして解説ポイントを確認
クリックして拡大図で確認
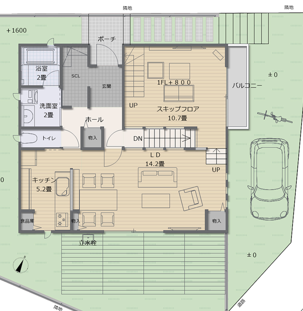
部屋を通る事なく玄関から洗濯・浴室に入る事ができるのでサーフィン後も快適です。
ビルトインガレージから、直接家に入れる出入り口を設けました。
ガレージ上部をスキップフロアにし、メインリビングから適度な距離感を取って趣味部屋のようなセカンドリビングにしました。
クリックして解説ポイントを確認
クリックして拡大図で確認
海が近いという事で、潮風を考慮し2階南面に室内干しスペースを設けました。
吹き抜けで明るく開放的にしています。
クリックして解説ポイントを確認
クリックして拡大図で確認
3Dで郊外の一戸建ての内部をチェック!
このページの間取りやパースは3Dデザイナーシリーズで作成しています。
360度で一戸建ての間取りの内部をチェック
360度で見る事ができます。
マウスで画像をぐるぐると動かしてみてください。
360度画像は3Dデザイナーシリーズで作成しています。
郊外の一戸建ての間取りに関する質問と回答
海の近くだと潮風の影響で、家の錆びが心配です。
サッシやベランダ、外壁などを選ぶときに注意すべき点はありますか?
また内装材にも配慮が必要でしょうか?
家の外部に関しては配慮が必要ですが、現在のアルミ製品は非常に品質が良いため、基本的には問題ないです。
不安が残るようであれば、サッシ・ベランダ手すり・外構フェンスなど、価格はアップしますが 樹脂製の商品もありますので検討してみてください。 家の中はあまり気にしなくて大丈夫だと思います。
外から帰ってきたときに、砂を家の中に持ち込むことが多いのですが、できるだけ持ち込まないようにしたいです。
また、掃除を簡単にするにはどうしたらいいでしょうか?
砂を持ち込まないようにするには、玄関に入る前に靴裏を洗える場所やコンプレッサーで吹き飛ばすなど、生活の工夫が必要かもしれません。
また、掃除のしやすさと言う点については玄関框を通常より少し高めに設定すれば、家の中への砂ぼこりの侵入もしづらくなりますしジャブジャブ水を流すこともできます。
玄関近く、ウッドデッキ近く、バルコニーに水道を設置すると良いでしょう。
広々として気持ちが良さそうな家ですね。
これから家族でサーフィンを思いっきり楽しみたいと思います。
素敵な間取りのおしゃれなお家をありがとうございました!
自然あふれる郊外の一戸建ての間取り
他の間取りを見る
- #ルーフバルコニー
- #カフェ+3LDK
- #スロープ
- #カフェ
- #オープンキッチン
- #リフォーム
- #キャットウォーク
- #オープンクロゼット
- #5LDK
- #シェアハウス
- #ネコと暮らす家
- #マンションリフォーム
- #ソーラーパネル
- #エレベーター
- #シアタールーム
- #地下
- #1LDK
- #1LDK+1LDK
- #1LDK+3LDK
- #2LDK
- #2LDK+1LD
- #3LDK
- #3LDK+1L
- #4LDK
- #5LDK
- #6LDK
- #アイランドキッチン
- #インナーガレージ
- #ウォークインクローゼット
- #ウッドデッキ
- #カーポート
- #ガーデニング
- #スキップフロア
- #テラス
- #ドッグスペース
- #バリアフリー
- #バルコニー
- #パントリー
- #ポーチ
- #ランドリースペース
- #ロフト
- #中庭
- #吹き抜け
- #和室
- #完全分離
- #完全分離型
- #平屋
- #書斎
- #玄関クローク
- #納戸
- #部分共有型
- #部分共用型






外観
半地下 ビルトインガレージ
1階 ガレージへの階段
1階 リビング
1階 リビング
1階 スキップフロア
1階 スキップフロア
2階 吹き抜け
2階 室内干しスペース 




