一級建築士に聞いた ケース別間取りプラン
一級建築士に聞いた ケース別間取りプラン

終の住処 平屋の間取り(40坪前後)

老後も趣味と快適な暮らしを楽しめる間取り

老後は1人で趣味を楽しみながらのんびり暮らしたいので、そんな間取りをお願いします。
趣味はガーデニングで、おしゃれなお花や野菜を育てるのが好きです。
足腰に不安があるので、バリアフリーも完備して欲しいです。

素敵なご趣味ですね。
身体の不安もあるかと思いますし、コンパクトながらも快適に暮らせるそんな間取りを考えました。

家族構成

1人(60代後半)

土地面積

130m2(39 坪)
前面道路公道5m、西向き
私鉄沿線、駅より徒歩10分 閑静な住宅地
用途地域:第1種低層住居専用地域
詳しい用途地域の説明はこちら
建蔽率:60%/容積率:150% 準防火地域
最高高さ限度:10m  第1種高度地区
日影規制:5mを超える範囲:3時間以上、10mを超える範囲:2時間以上 測定水平面:1.5m
建築条件なし

予算 約2,000万円

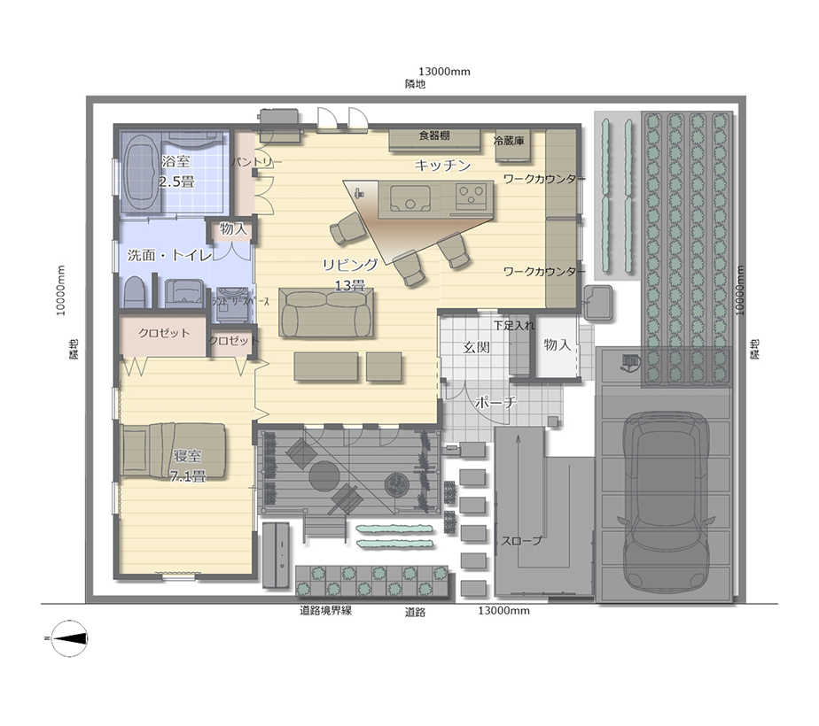
建築士による平屋の間取り解説

まずバリアフリーを想定して、車を降りてすぐ車椅子を使用できるアプローチの設置。
玄関を入ってからできるだけ段差を解消し、ドアは必要最小限に抑え、片引き戸又は、開き戸にしました。
キッチンは、料理を楽しんで過ごせるように対面キッチンとし、ワークカンター及びキッチンカウンターやパントリー室を配置しました。
寝室は、ベッドがバリアフリー化の変化に対応できるようにしました。
水回りにおいては、浴室は広く出入口を引き違い戸とし、トイレ、洗面、ランドリーなど一か所に集中させ壁、ドアを無くしました。
外部には、ゆったりできるテラス、ガーデニングや花や野菜を育てられる庭の広さを確保しました。
また、日当たりを考えて、トップライトを、東、南、西に配置してみました。
カーポートは玄関から出て車にすぐ乗ることが出来るように設置しました。

3Dで平屋の内部をチェック!


360度で平屋の間取りの内部をチェック

360度画像ダウンロード

360度で見る事ができます。
マウスで画像をぐるぐると動かしてみてください。

360度画像は3Dデザイナーシリーズで作成しています。


ウォークスルーで平屋の間取りの内部をチェック

ウォークスルー動画は3Dデザイナーシリーズで作成しています。


平屋の間取りに関する質問と回答

バリアフリー住宅を建てる際に気を付ける点を教えてください。

誰にとっても安心して暮らしやすいのがバリアフリー住宅です。
バリアフリーといっても、仕様はさまざまです。例えば、トイレの手すりひとつとっても、左右どちらの壁につけるのがいいのか、適した高さはどれくらいかなど、必要とする人の状態によって使いやすい設置の仕方が違ってきます。
つまり、ケースバイケースということになるので、必要とする人の状態をよく聞き取りをし、現在・将来に何が必要かを提案することが必要だと思います。

手すりを付けるならどのあたりに設置すればよいでしょうか?

トイレに腰かけたり、立ち上がったりといった動作は、元気なときには苦になりません。しかし、若くてもぎっくり腰になって動くのが辛いときや、妊娠中で思うように動けないときなど、手すりがあると安心感が違います。暮らす人の年齢に関係なく、片側だけでも手すりをつけておくといいですね。
また、高齢になっても積極的に外へ出ることで、心と体の健康を維持しやすいです。そのためにも玄関のバリアフリー化は大切です。
浴室用に手すりをつけておくことも必要です。湯船から出入りする時や立ち上がる時など手摺があれば、苦にならないと思います。

浴室のドアが3枚ガラス戸になっているのですが、こちらは何か意味があるのでしょうか。
ガラス戸なので洗面室から丸見えになっていることと、3枚ガラス戸になっているために、こちら側の壁が使用できません。
また、比較的幅広のガラス戸なので、手すりなどを付ける場合の壁がなくなってしまいませんか?

3枚ガラスドアにしたのは、浴室に入っていて万が一トラブルがあった場合、洗面室から姿が見えることが必要だと考えたからです。
丸見えだとやはり恥ずかしさがあると思いますので、透明ではなく、アクリルパネルやカーボネイトなどを設置するとよいと思います。 また、3枚ドアにすると手摺部分が設置できなくなる心配がありますが、L型の手摺を設置することも可能だと思います。

バリアフリーも完備されていて、今後も安心して暮らせそうな間取りですね。
素敵な間取りとおしゃれな家をありがとうございます!

自分たちでも自由に間取りを作成してみたい!
そんな時は3Dマイホームデザイナーがおすすめです。


詳しくはこちら