サポート情報
3DオフィスデザイナーPRO4

手摺りパネルを作成する

公開日:2012年8月29日

■詳細

3DオフィスデザイナーPRO4に搭載されている「パーティション作成ウィザード」は、単にパーティションを作成するだけでなく、数値やパネルの設定次第で手摺りパネルなどを作成できます。
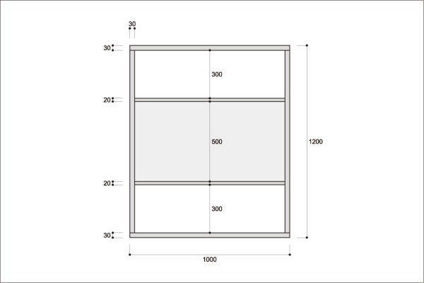
ここでは、次の図のような手摺りパネルを作成します。

■操作方法

  1. [間仕切り]レイヤに切り替え、[間仕切りパーツの作成]ボタンをクリックします。
  2. 表示された[サイズ情報設定]で次の図のように設定します。
    「自由設定」を選択することで、パネルの枚数や高さ、厚みなどを自由に設定できます。

    設定したら[次へ]をクリックします。
  3. 表示された[色の設定]で色や模様を貼り付けます。

    色や模様を貼り付けたら[次へ]をクリックします。
  4. [ファイル出力]で「品名」を入力し、保存先は「間仕切りパレットの『お気に入り』」に設定して[保存]をクリックします。
  5. [名前を付けて保存]でファイル名を入力して[保存]をクリックします。
    パーティション作成ウィザードの終了を確認するメッセージが表示されるので[はい]をクリックします。
  6. 間仕切りパレットの「お気に入り」に作成したパネルが表示されます。
一覧に戻る
オフィスレイアウトソフト 3Dオフィスデザイナーシリーズ