ホーム
>
サポート
>
オフィスレイアウトソフト 3Dオフィスデザイナーシリーズ
>
3DオフィスデザイナーLM
3DオフィスデザイナーLM
同じ色のチェアをほかの色のチェアに一斉に入れ替える
公開日:2009年7月23日
■詳細
一度配置したチェアをほかの色のチェアに一度に入れ替える方法です。
デスク、キャビネットなどをほかの色や形状のパーツに入れ替えるときにも利用できます。
■操作方法
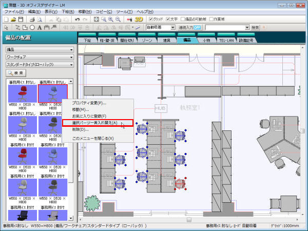
3Dウィンドウを起動してイメージを確認した際、配置されているチェアの色を変更したいとします。
平面図上で入れ替えたいパーツを右クリックして[同じ種類のパーツをすべて選択]を選択します。
同じ種類のパーツがすべて選択状態になります。
パーツパレットの中分類リストを「ワークチェア」に切り替え、入れ替えたいチェアを右クリックして[選択パーツ一斉入れ替え]を選択します。
配置されていたチェアが、選択したチェアに一斉に入れ替わります。
一覧に戻る
オフィスレイアウトソフト 3Dオフィスデザイナーシリーズ
(C)MEGASOFT Inc.