MEGASOFT

間取り・注文住宅プラン集

全間取り図無料ダウンロード

#斜線制限のページ一覧です。

【間取り・注文住宅プラン】カーポートと大きなバルコニーのある3LDKの間取り

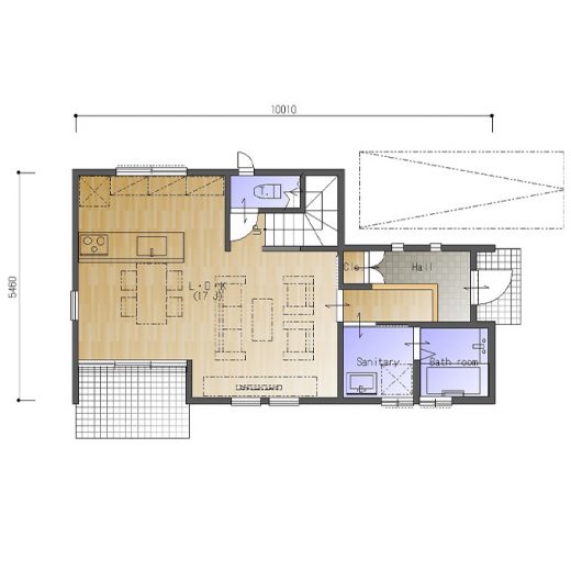
【間取り・注文住宅プラン】和室のつながった広いリビングと、アイランド型キッチンの楽しい4LDKの間取り

【間取り・注文住宅プラン】リビングが和室と繋がった、下屋のある4LDKの間取り

【間取り・注文住宅プラン】広いリビングと和室の繋がった4LDKの下屋のある間取り

【間取り・注文住宅のプラン】リビング脇のバルコニーが明るい北道路3階建て4LDKのプラン①

【間取り・注文住宅プラン】南北に長い敷地に建つ、斜線制限に配慮した4LDKの間取り

  • 3Dアーキデザイナー
特集の間取りを見る

■間取り図の利用方法について
■m3dデータについて

間取り・プランの検索

部屋数
階数
玄関向き
延べ床面積

その他のキーワード

2階トイレ 2階リビング 2階水回り m3d アイランドキッチン アウトドアリビング ウォークインクロゼット ウッドデッキ カーポート コートクローク シューズクローク セカンドリビング バスコート パントリー ミセスコーナー ライトコート リビング階段 リモートコーナー リモートワーク ロフト ワークスペース 二世帯住宅 北側斜線 北側水回り 吹き抜け 和室 回遊動線 土間 対面キッチン 斜線制限 書斎 玄関収納 玄関土間 納戸 階段下収納
MEGASOFT

間取り・注文住宅プラン集

©1995-2023 MEGASOFT Inc.