間取り・注文住宅プラン集
【間取り・注文住宅プラン】共通の玄関にした二世帯住宅のプラン

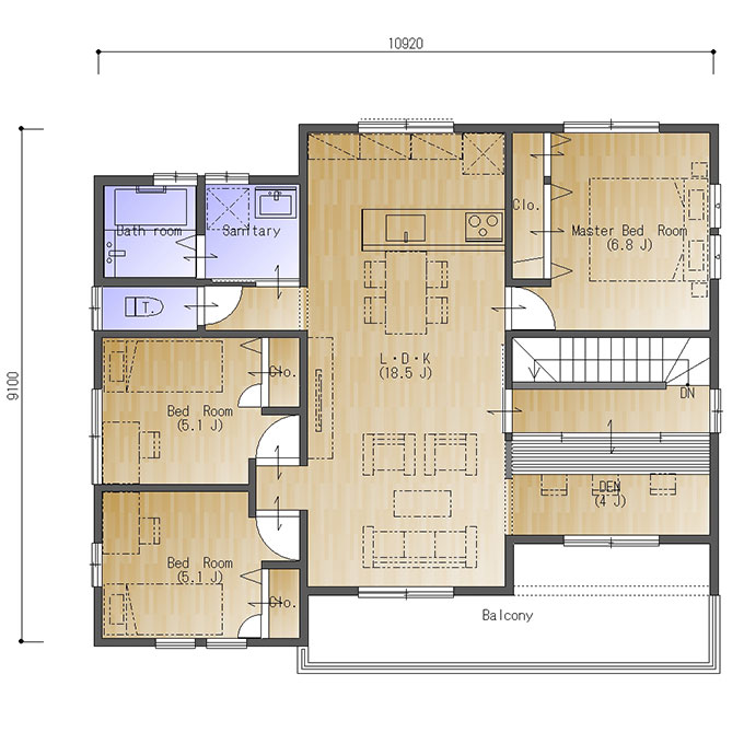
南玄関、東西の間口6.0間(10920㎜)、南北の奥行が5.0間(9100㎜)の参考プランです。
共通の玄関にした二世帯住宅のプランです。
二世帯住宅は玄関が別にするのが定石のようですが、仲の良いご家族で玄関を一緒でもいいよというとになると、このプランのように立派な迫力のある玄関にすることができます。
玄関ホールは8帖、展示場でもなかなかつくらないサイズです。入り口は一つですが、動線がわかれるようホールは土間でつながっていて、各世帯のホールの仕切りに壁があります。ここは格子で仕切る形でもいいですね。
一階LDKは18帖と広々。隣り合わせた8帖の和室とつなげれば26帖の広さになります。和室前にはバルコニーで庇のついたデッキも。強い日差しも入らず夏場でも過ごしやすい和室になります。
二階のリビングも約18帖あります。バルコニーの正面にはリモートコーナーも。リモートコーナーとホールの間は壁にしてしまうのでなく、障子などにすると明るさも取れて面白い空間になりますね。
これをベースにお好きな間取りに描きかえてください!
(S167)

