間取り・注文住宅プラン集
【間取り・注文住宅プラン】東西に細長い敷地に建つ、3LDKの間取り

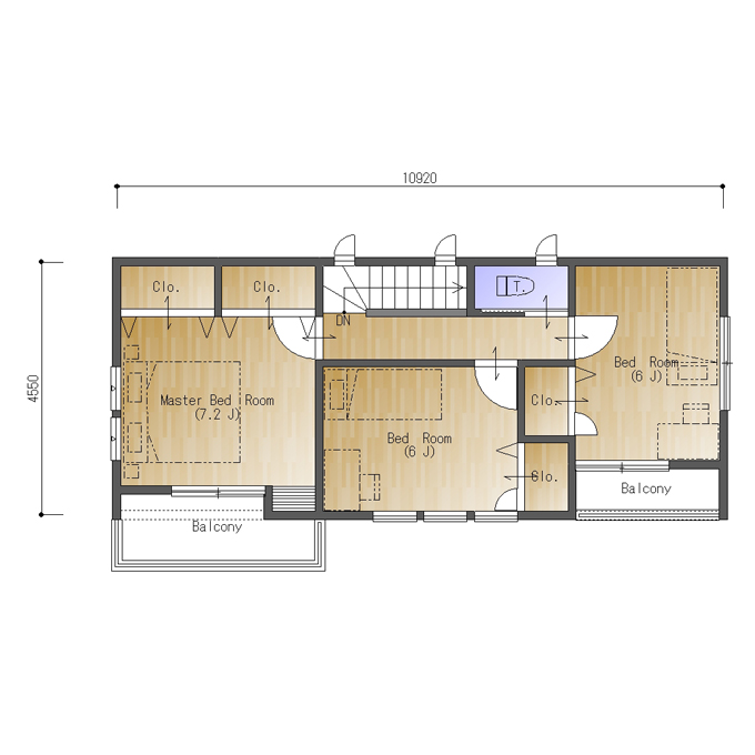
南玄関で東西の間口6.0間(10920㎜)、南北の奥行が2.5間(4550㎜)の参考プランです。
東西に細長い敷地に建つ、3LDKの間取りです。
細長い敷地でもゆったりとした広さの18帖あるLDKです。リビング階段は毎日の家族のコミュニケーションを活発にして会話をする機会が多くなります。
玄関ホールにあるバスユニットや洗面は一坪取れていますし、シューズクロークもついて外回りの品物をたっぷりと収納できます。
二階は三部屋。主寝室は8帖をベースにあえて引き込んでバルコニーを少し広くしました。
子供部屋も各部屋収納を除いて6帖ずつとれています。
これをベースにお好きな間取りに描き変えてください!(S153)

