間取り・注文住宅プラン集
【間取り・注文住宅プラン】完全分離の二世帯住宅の間取り

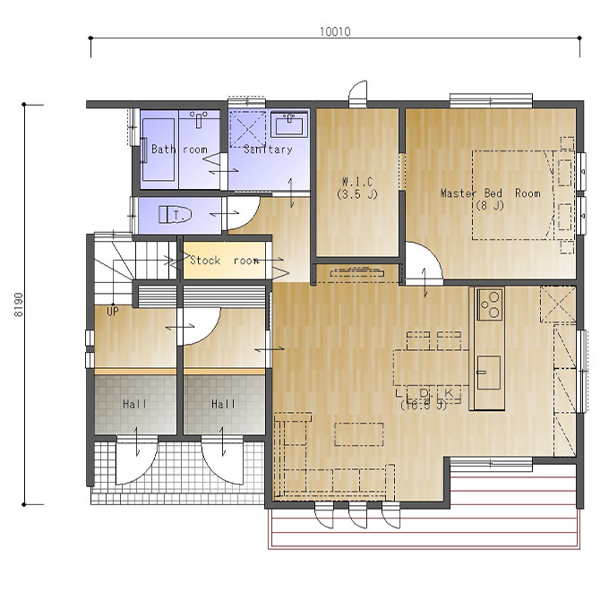
南玄関、東西の間口5.5間(10010㎜)、南北の奥行が4.5間(8190㎜)の参考プランです。
完全分離の二世帯住宅の間取りです。
玄関は親世帯と子世帯を別々にしました。ホールは壁一枚で仕切られているので扉をつけて行き来ができるようにしました。
1階と2階のLDKは同じ位置に同じ大きさになります。いずれもゆったり16帖ほどの広さになっています。
二階主寝室の下に玄関が来るように配慮し、メンテナンスや音の問題を考えて水回りは上下階ともほぼ同じ位置に配置しています。
子供部屋は隣り合わせで北側に配置しました。みんなのいるリビングのすぐ近くなので孤立することがない間取りです。
これをベースにお好きな間取りに描きかえてください!
(S149)

