間取り・注文住宅プラン集
【間取り・注文住宅プラン】東西に細長い敷地に建つ3LDKの間取り

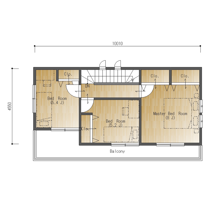
南玄関で東西の間口5.5間(10010㎜)、南北の奥行が2.5間(4550㎜)の参考プランです。
こちらは東西に細長いコンパクトな敷地に建つ、3LDKの間取りです。
LDKは16帖。こちらの建物ではリビング階段にして空間を有効活用しました。毎日「いってきます」「おかえりなさい」のコミュニケーションがとれます。コンパクトな住まいですが水回りとリビングの空間を分けています。シューズクロークまで。キッチンも2550mmの標準サイズで対面キッチンが入ります。
二階は三部屋。主寝室は8帖で夫婦二人の別々のクロゼットを用意しました。
これをベースにお好きな間取りに描き変えてください!(S133)

