間取り・注文住宅プラン集
【間取り・注文住宅プラン】東西に細長いコンパクトな敷地に建つ2LDKの間取り

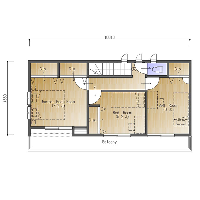
南玄関で東西の間口5.5間(10010㎜)、南北の奥行が2.5間(4550㎜)の参考プランです。
東西に細長いコンパクトな敷地に建つ、3LDKの間取りです。
LDKは16.7帖。このサイズの建物ではリビング階段のほうが空間を有効活用できますね。家族のコミュニケーションも弾みます。コンパクトな住まいですがバスユニットや洗面は一坪取れていますし、シューズクロークまで。キッチンも2550mmの標準サイズで対面キッチンが入ります。
二階は三部屋。主寝室は8帖をベースにあえて引き込んでバルコニーを少し広くしました。
これをベースにお好きな間取りに描きかえてください!
(S132)

