間取り・注文住宅プラン集
【間取り・注文住宅プラン】カーポートと吹き抜けがある、二階に水回りをもってきた4LDKの間取り

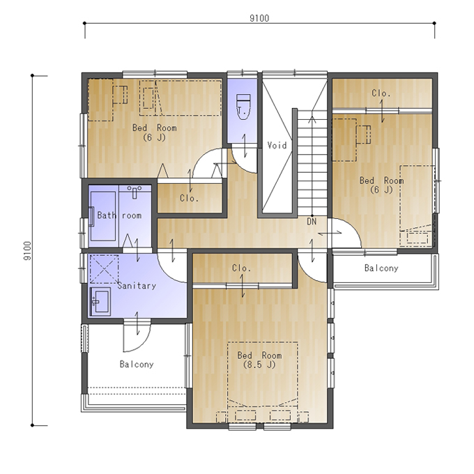
東西の間口5.0間(9100㎜)、南北の奥行が5.0間(9100㎜)の南玄関の参考プランです。
カーポートと吹き抜けがある、二階に水回りをもってきた4LDKの間取りです。
カーポートを置くために建物を大きく削られていますが、それでもLDKだけで26帖という大きな建物です。水回りを二階に持って行ったので、少し間延びするくらいのおおきなLDKになりました。家具も大きなものを入れたいですね。
リビング階段脇には吹き抜けもついています。大きな家でも離れた家族の様子が伝わりやすい作りになっています。
二階は三部屋すべてが角部屋になるようにレイアウトしました。また大きなバルコニーには洗面所と主寝室からアクセスできます。屋根もついているので洗濯を干す場としてだけでなく、ちょっとくつろぐスペースにも。
これをベースにお好きな間取りに描き変えてください!(S128)

