間取り・注文住宅プラン集
【間取り・注文住宅プラン】東西に細長い敷地に建つ、今度は3LDKの間取り

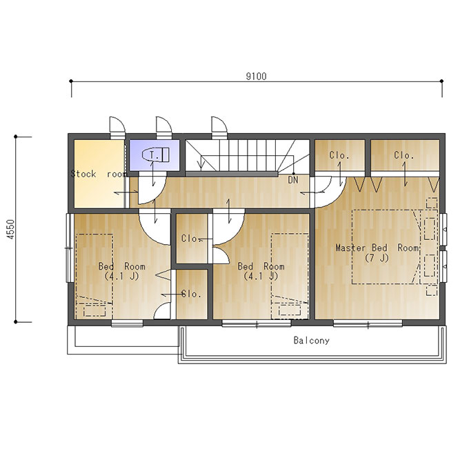
南玄関で東西の間口5.0間(9100㎜)、南北の奥行が2.5間(4550㎜)の参考プランです。
東西に細長い敷地に建つ3LDKの間取りです。
水回り部分をコンパクトに収めています。
その分LDKは15.7帖。リビング階段ですので家族のコミュニケーションも弾みます。
コンパクトな住まいですがバスユニットは一坪取れていますし、キッチンも2550mmの標準サイズで対面キッチンが入ります。ソファやテレビ台をおいても十分な広さが取れる間取りです。
二階は三部屋なので子供室を4畳半に抑えました。でも部屋の間に互い違いになった収納を挟んで、将来的に一部屋にすることもできる配置です。
主寝室は収納をできるだけ取りました。代わりに廊下の脇に納戸を用意しています。
これをベースにお好きな間取りに描きかえてください!
(S099)

