間取り・注文住宅プラン集
【間取り・注文住宅プラン】大きなリモートコーナーのある広いリビングの3LDKの間取り

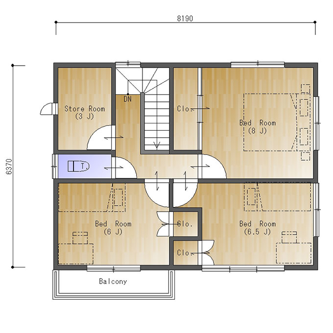
南玄関、東西の間口4.5間(8190㎜)、南北の奥行が3.5間(6370㎜)の参考プランです。
大きなリモートコーナーのある広いリビングの3LDKの間取りです。
アイランド型に配置したキッチン、ダイニングテーブルがキッチンの横についているので調理していた奥様が席につきやすいレイアウトです。キッチンの向いには幅が2600㎜もあるカウンターがあり、そこでリモートワークや家事もできるように。キッチン前のカウンターはそこで食事もできるようなカウンターでも、リモートワークで使う書類をいれる本棚にしてもいいかもしれません。
リビング階段なので毎日必ず家族の顔が見れる設計になっています。二階は3帖の納戸もあるので季節ものの収納もバッチリ。
これをベースにお好きな間取りに描きかえてください!
(S071)

