間取り・注文住宅プラン集
【間取り・注文住宅プラン】効率的に部屋を配置した無駄のないリビング階段のある3LDKの間取り

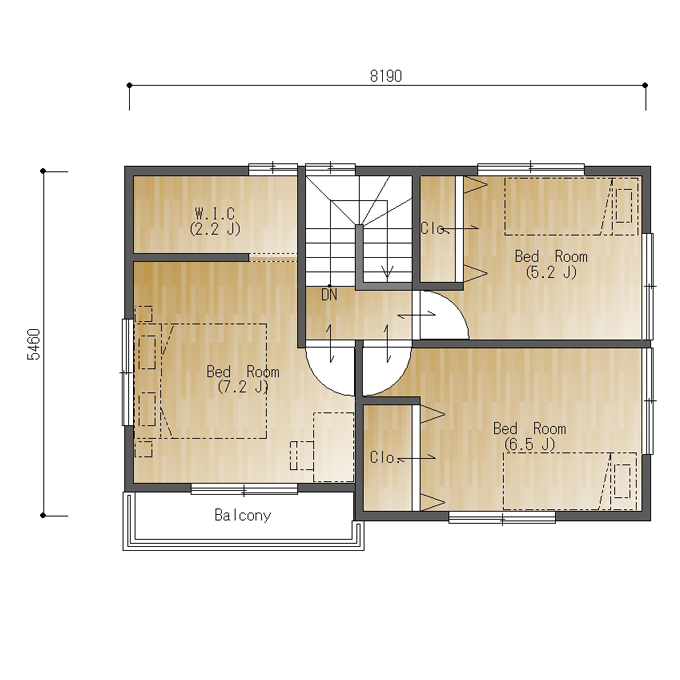
南玄関、東西の間口4.5間(8190㎜)、南北の奥行が3.0間(5460㎜)の参考プランです。
こちらも効率的に部屋を配置した無駄のないリビング階段のある3LDKの間取りです。
玄関ホールや二階廊下を極力小さくして部屋を大きくする工夫をしたもうひとつの間取りの例です。こちらはスペースをやりくりしてシューズクロークもつけました。コンパクトながらもLDKは16.5帖、二階の主寝室は寝室空間だけで7帖強あります。バルコニーを置くために少し建物が凹んでいますが、建ぺい率・容積率に問題なければ拡げて構わないところです。
子供部屋はそれぞれ一間の収納を置いていますが角部屋なので通風・採光に優れ、狭さを感じません。
これをベースにお好きな間取りに描き変えてください!(S069)

